Velké kino moderního Zlína

Návrh č. 1

re:architekti studio / / Česko — Praha
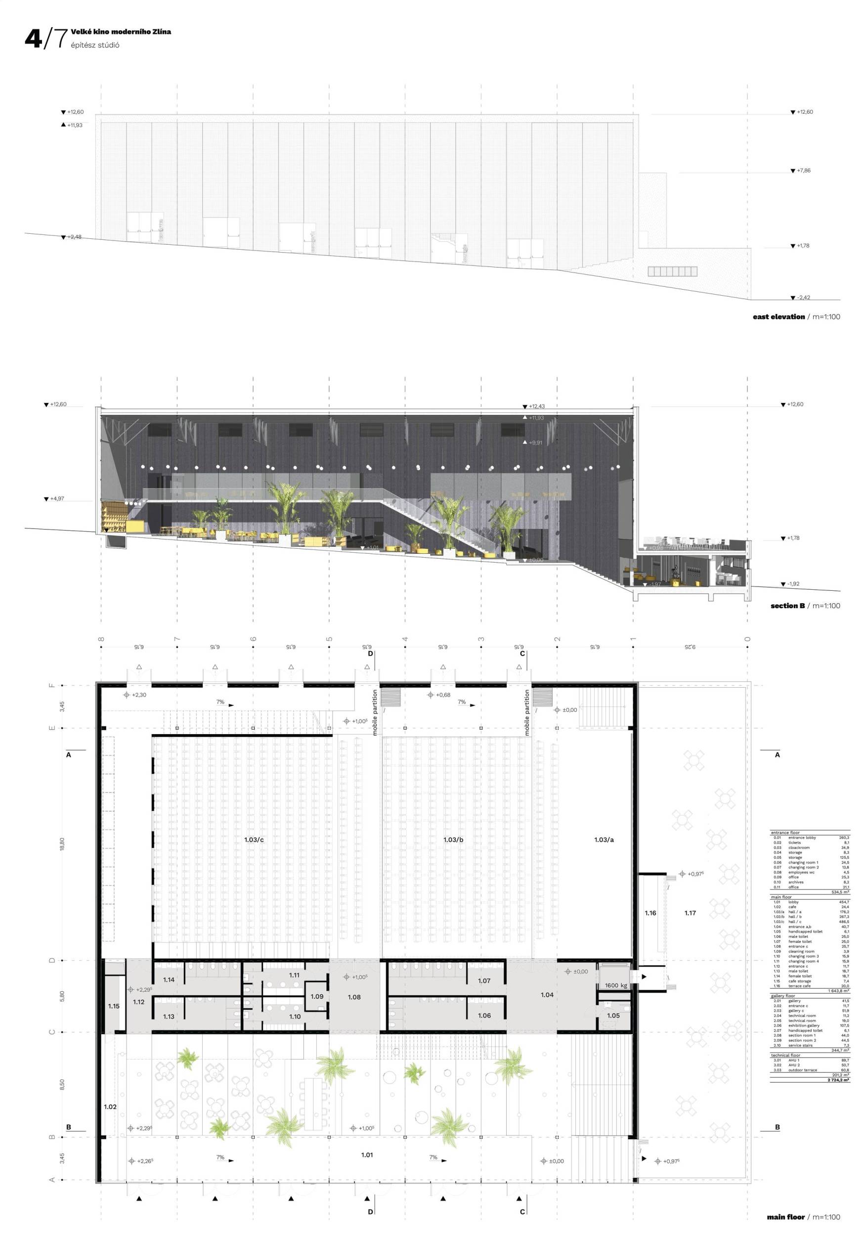
Návrh č. 2

Építész Stúdió / / Hungary — Budapest
Návrh č. 3

A B.K.P.Š / / Slovensko — Bratislava
Návrh č. 4

Petr Hájek ARCHITEKTI / / Česko — Praha
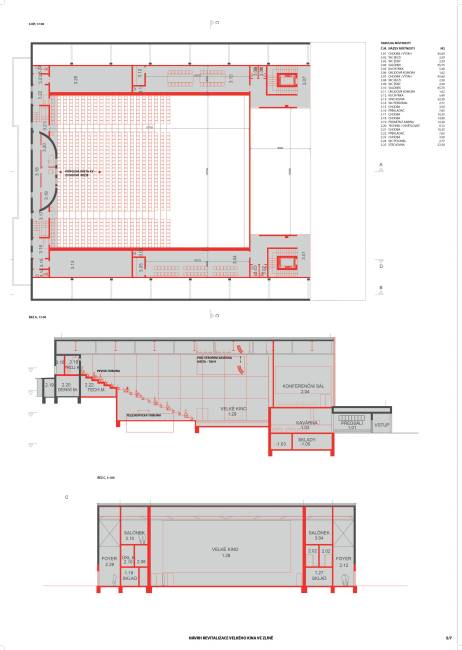
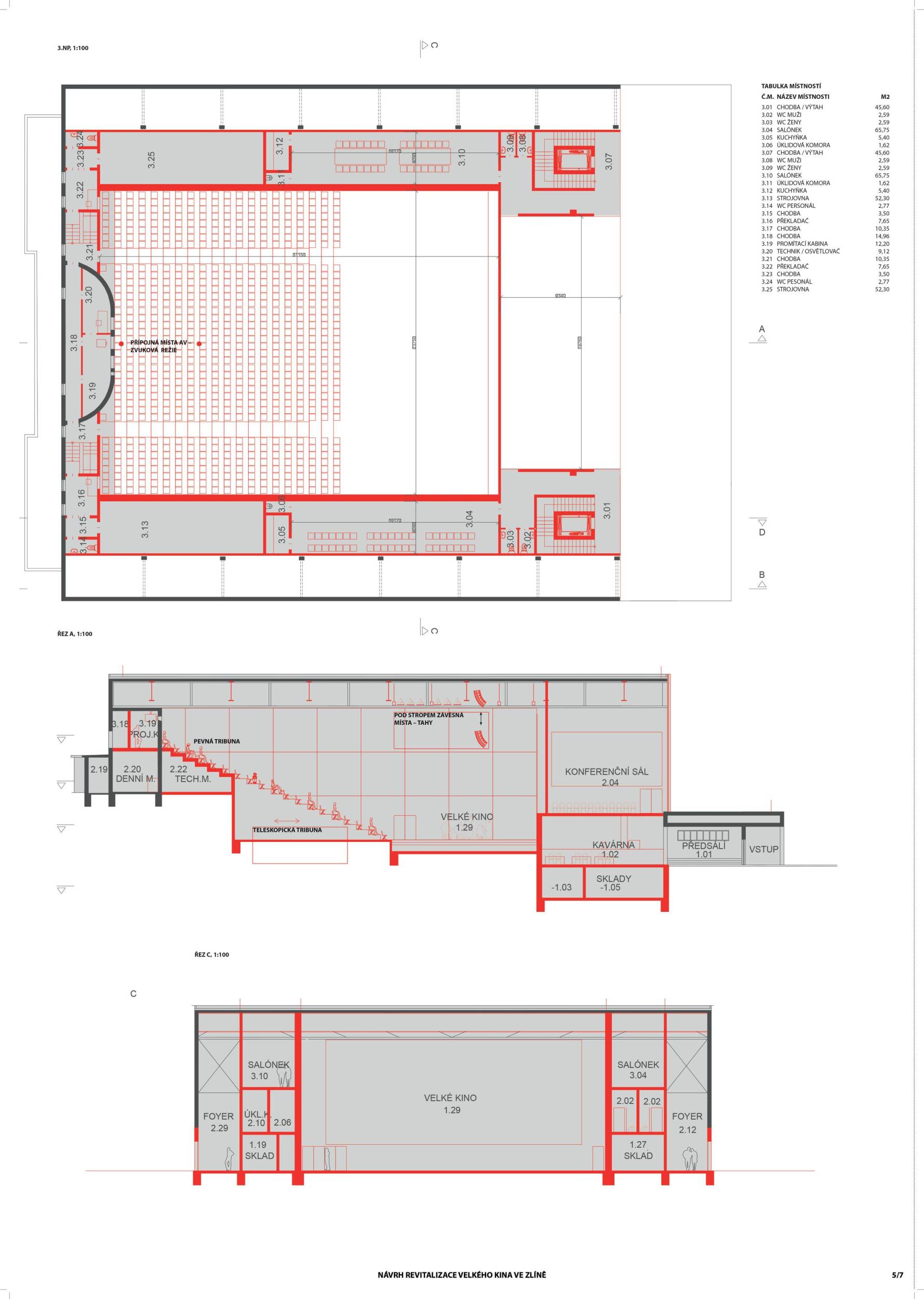
Návrh č. 5

ov architekti / / Česko — Praha
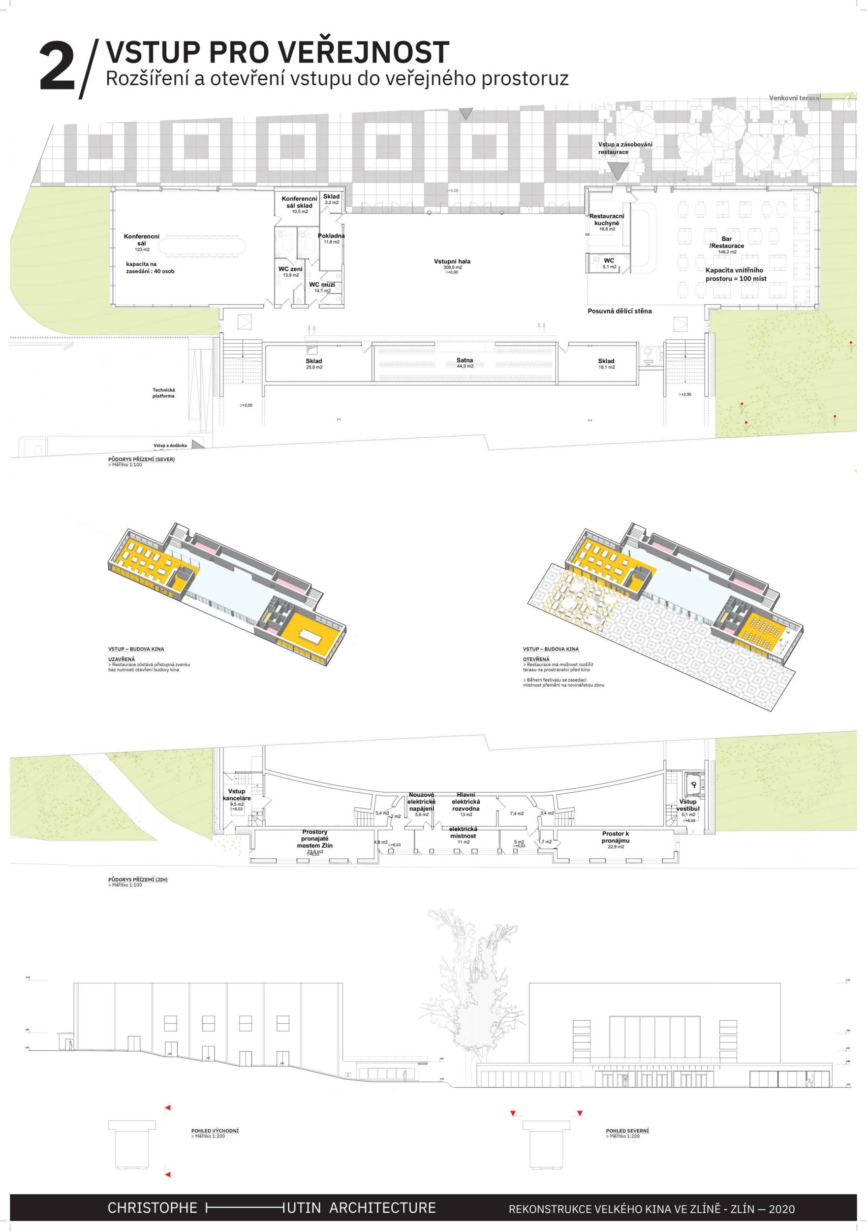
Návrh č. 6

Christophe Hutin Architecture / / France — Bordeaux