Velké kino moderního Zlína

1. místo
  • Autor re:architekti studio
  • Země Česko
  • Město Praha
Anotace

Za nejsilnější „obraz domu” považujeme jeho původní stav roku 1932. Líbí se nám jeho jednoduchost a účelnost. Tyto kvality chceme kinu vrátit. To znamená očistit vnější podobu domu od novodobých nánosů a vrátit se k původní objemové lapidárnosti a odhalit velikost a konstrukční prostotu původní haly. Nové Velké kino stojí provozně na dvou sálech – jeden pro 210 sedících a druhý pro festivalových 900 sedících diváků kina. Oba víceúčelové sály mají rovnou podlahu, jsou dělitelné, mají dobré akustické podmínky, různé způsoby využití a lze je používat paralelně, nezávisle. Do velkého sálu je možné zajet nákladním autem s návěsem. Posuvná okna jsou nesena samostatnou nosnou konstrukcí, aby nezatěžovala konstrukci historickou. S ohledem na rozměry oken jsou okna opatřena systémem protizávaží a elektromotory pro manipulaci. Velké kino má dostatečné kapacity zázemí. Tato konstelace umožňuje nepřetržitý provoz, kdy každodenní malé akce příležitostně střídají akce velké. Život ve Velkém kině zabezpečuje velkorysá kavárna v jeho foyer, která se během letních měsíců otevírá na terasu před kinem. Velké kino poskytuje i několik studií pro nahrávání, animaci, fotografii a kanceláře pro zaměstnance či k pronájmu. Prostor před kinem soustředí pohyb a život na náměstí. Na hraně se sedí, z hrany se vyhlíží na třídu Tomáše Bati, na terase je kavárenské sezení, na terase se dá hrát, z terasy je výhled. Takových míst je ve Zlíně málo. Architekti: Michal Kuzemenský, David Pavlišta, Ondřej Synek, Jan Vlach, Jiří Žid, Michaela Hudečková, Vojtěch Ružbatský, Dušan Sabol, Alžběta Widholmová Krajinářská architektura: Symbio studio (Pavla Drbalová, Marie Gelová, Sandra Chlebovská) Konstrukce: Excon (Vladimír Janata, Jindřich Syrovátka) Akustika: Petr Novák Dopravní inženýr: Květoslav Syrový Požární ochrana: Jan Trafina Konzultant provozu: Jiří Sulženko

Hodnocení poroty

Odvážná a imaginativní současná reinterpretace odkazu architektury moderního Zlína. Konsekventní universalistická koncepce s velkou flexibilitou využití pro kulturní i komerční programy. V tomto smyslu navazuje na původní smysl Gahurovy stavby. Dům je strojem pro tvorbu programu – nabízí dva hlavní prostory, menší sál pro běžné (každodenní) využití a univerzální velký sál pro prostorově náročnější akce. Hlavní hmota sálu je zmenšena o vloženou hmotu druhého sálu, čímž je redukována celková velikost prostoru, zůstává ale zachována jeho šířková proporce včetně celého rozponu památkově ceněné konstrukce. Návrh je z hlediska nosné konstrukce promyšlený a umožňuje i další varianty, které mohou vést k úspěšné realizaci se zachováním nosné funkce stávající konstrukce. Výborně je řešen provoz a zásobování budovy. Možnost otevření velkého sálu do exteriéru ještě umocňuje původní záměr stavby jako přestřešeného veřejného prostoru. Hlavní sál tak bude možno bezprostředně zapojit do dění na náměstí, což zásadně otvírá spektrum možného využití. Velkorysé otevření vstupní fasády vhodně artikuluje úmysl vytvořit přístupný veřejný prostor s každodenním využitím a komunikující s náměstím Práce. Vyrovnáním terénu před hlavním vstupem do objektu vzniká adekvátní vstupní předpolí, formálně jasně definované, ale současně stále součást typického rozlehlého prostranství na sever od Velkého kina. Návrh aktivně přistupuje k památkové ochraně ve smyslu dialogu starého a nového: nové vrstvy reprezentuje řešení konstrukce či funkční inovace – výtah i otevření/prosklení parteru čelního a bočních průčelí. Ambiciózní projekt klade nároky i na provozovatele, protože vyžaduje jeho aktivní spoluúčast. Z hlediska jevištní technologie návrh představuje promyšlené a funkční řešení uspořádání prostor a navážení techniky pro produkce. Velký sál disponuje odpovídajícím a efektivním řešením vysouvací elevace. Malý sál je proporčně ideálním prostorem pro malé divadelní produkce všech žánrů, konference apod. Elevace malého sálu je stavěná z praktikáblů, což představuje určitou časovou náročnost. Návrh je reálný z hlediska technologického vybavení a rozpočtu nákladů na technologie.

Předchozí Další
2. místo
  • Autor Építész Stúdió
  • Země Hungary
  • Město Budapest
Anotace

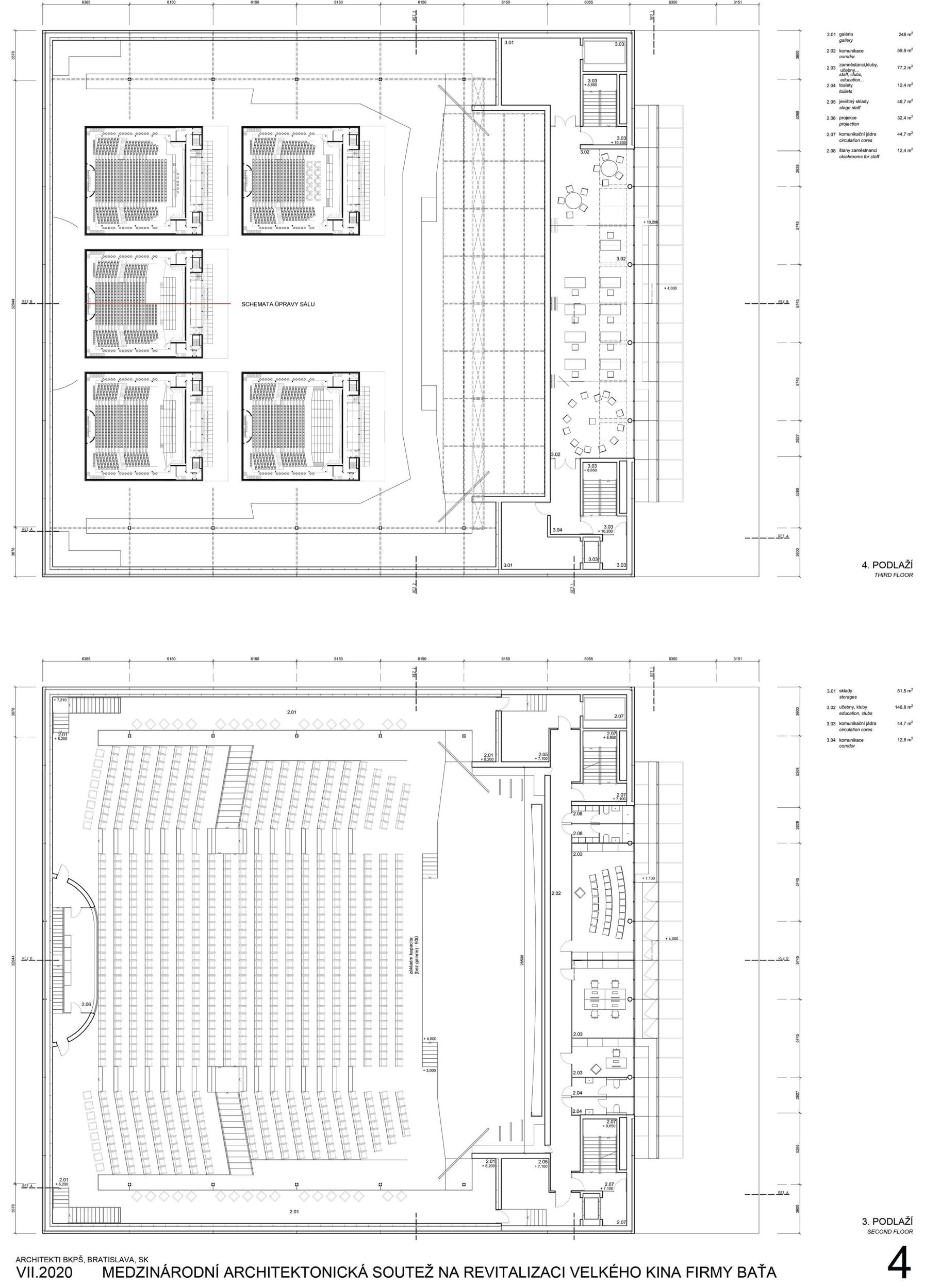
Původní strohá Gahurova budova byla téměř tak jednoduchá jako „matematický vzorec“. Po rekonstrukci by Velké kino mělo být mnohem komplexnějším místem, místem setkání, kde se občané nejen pobaví, ale někdy se nechají překvapit nebo dokonce provokovat. Nejdůležitějším prvkem tohoto návrhu je nový podlouhlý objem, který rozděluje prostor asymetricky na dvě části. Obě jsou víceúčelovými halami, liší se však velikostí a nabízejí různé možnosti. Jejich charakter je také odlišný, první je otevřená (průsvitná) a druhá je uzavřená. Obě nově vytvořené prostory mají přímý přístup z původní haly. Ta by měla zůstat běžným každodenním vstupem, zatímco druhý navržený vstup by měl sloužit formálnějším událostem a fungovat jako „vstup na festival“. Vložený objem má tři patra a uvnitř je umístěno hlavní vertikální cirkulační jádro. První patro zahrnuje vnitřní vstupy do hlavního sálu. Druhá úroveň je víceúčelová a lze ji rozdělit jako hlavní hlediště. Horní podlaží je servisní. Zatímco jsme rozdělili interiér na dvě části, abychom vytvořili sál, otevřené lobby se táhne směrem k městu s novým veřejným prostorem pod borovicemi. Stávající borovice vytvářejí pro terasu jedinečnou atmosféru. Pod borovicemi jsou různá využití prostoru od terasy pro kavárnu po dětské hřiště a venkovní hlediště pro děti. Nový otevřený prostor – „městský obývací pokoj“ – je prostorem komunikace s městem. Architekti a krajinářská úprava: Tamás Fialovszky, Gergely Kenéz, Iván Nagy, Katalin Varga Konstrukce: Dezső Hegyi Strojní inženýr: Zoárd Mangel Akustika: Csaba Huszty, Tamás Illy Požární ochrana: György Decsi, Endre Ihnátisin

Hodnocení poroty

Návrh pragmaticky vkládá do prostoru kinosálu pevný blok, který ho dělí na dvě části: nové vstupní prostory a podélný sál, jež lze ještě dle potřeby rozdělit. V kontextu ostatních návrhů specificky asymetrický přístup nabízí vznik velmi atraktivního foyer, které je provozně i vizuálně propojeno s východním předpolím kina. Vytvoření kaskádovitého krytého „obývacího pokoje“ je z pohledu všedního užívání budovy vnímáno velmi pozitivně. Velkým přínosem návrhu je oživení navazujícího venkovního prostoru směrem k hotelu Moskva a Obchodnímu domu. Velkorysé prosklení východní fasády současně upozorňuje na dění uvnitř domu. Prolnutí terénu z exteriéru do interiéru vybízí k expanzi aktivit z interiéru foyer do exteriéru. Nová organizace má však za následek nežádoucí prostorovou a uživatelskou asymetrii objektu. Preferování nového vstupu z východní strany je v konfliktu s důležitostí původního vstupu do objektu ze severní strany od náměstí Práce. Otázky vzbuzují i proporce a hloubka velkého sálu, který je pro funkci kina limitní, jakož i reálnost současného užívání menších sálů po jeho rozdělení. I přesto, že lze díky vloženému železobetonovému bloku ponechat původní konstrukci, jejím příčným rozdělením se vytrácí velkorysost Velkého kina a již nelze vnímat celkový rozpon památkově ceněné konstrukce. Z hlediska jevištní technologie návrh disponuje dobrou variabilitou rozdělení prostor. Je navržen promyšlený a praktický způsob skládání a zasouvání sedadel hlediště sálu. Jsou-li sedadla hlediště složena v elevaci, bude nutná druhá sada mobiliáře pro jiná navrhovaná uspořádání, což přináší větší náročnost na skladové prostory, časovou a personální náročnost přestaveb. Vysoké budou i finanční nároky na způsob technologického řešení.

Předchozí Další
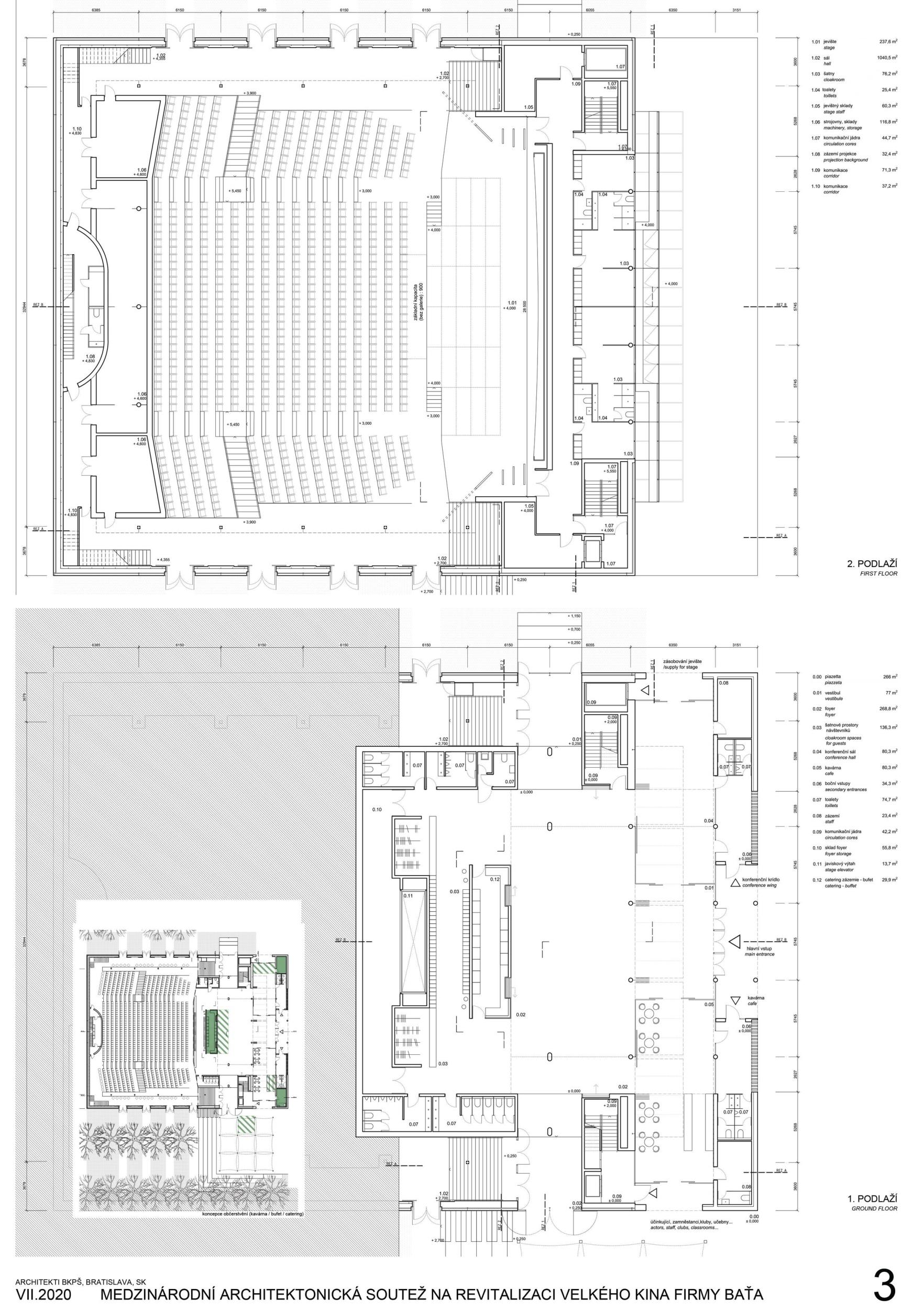
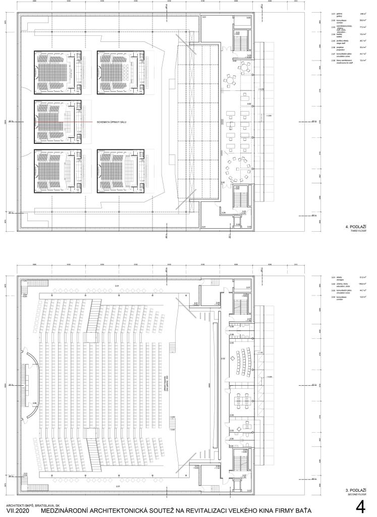
3. místo
  • Autor A B.K.P.Š
  • Země Slovensko
  • Město Bratislava
Anotace

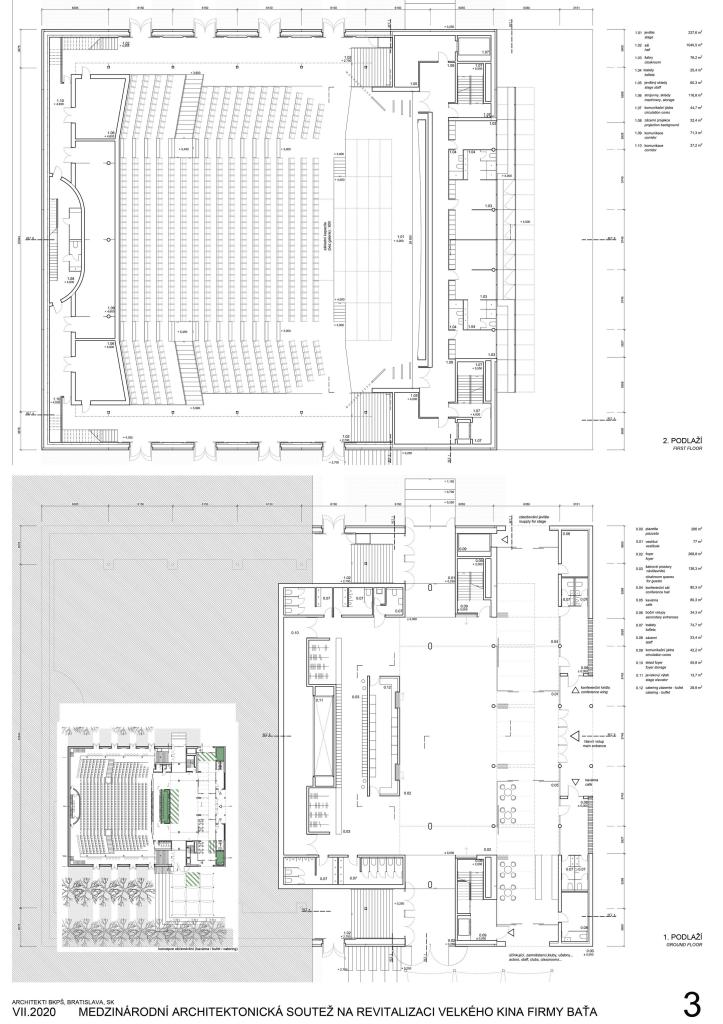
Jedinečnou hodnotou Gahurova původního konceptu je prostá logika integrace svahu do charakteru vnitřního prostoru. V tomto návrhu jsou v sále spolu-přítomné obě topografie. Ta původní – přicházející zvenčí – je obnovena v exteriéru i interiéru. Tou další hodnotou je kontrastující zjev navenek velkého zamlklého objemu neseného uvnitř delikátní konstrukcí. Odkrytá konstrukce se znovu stává určující rysem sálu. Tento návrh je pokusem tematizovat fakt permanentní proměnlivosti průčelí v průběhu téměř devět desetiletí historie této architektury i proměnlivost, která je esencí jejího nového (staronového) programu. S jistou nadsázkou je možné považovat proměnlivost za „pravdu“ této stavby. Nové průčelí zvěstuje městu aktuální události v domě a zároveň naznačuje otisk své původní podoby. Prostor před průčelím Velkého kina je koncipován jako víceúčelová plocha pro různé možné scénáře. Je místem pobytu i tranzitním územím. Pozvolný průnik pochozích a travnatých ploch propojuje vstupní prostranství budovy s jeho parkovým předpolím. Architekti: Martin Kusý, Pavel Paňák, Matin Kusý ml., Róbert Bakyta Spolupráce: Tatiana Kuva, Ľubomíra Blašková, Michal Pacher, Richard Kereškényi, Mária Horváthová, Dominika Húdoková, Ján Křižík, Stanislav Žaludek Konstrukce: Elter constructions (Ladislav Tausinger) Akustika: Euroakustik (Pater Zaťko) Topení, větrání, chlazení: Roman Kajan Stavební fyzika: Miestor (Tomáš Horák) Požární ochrana: Satpro (Juraj Sádecký)

Hodnocení poroty

Návrh představuje citlivou až řemeslnou obnovu Velkého kina. Všechny nové architektonické vstupy jsou důsledně podřízeny původní architektuře objektu. Nechává vyznít prostor Gahurova kina v celé šíři jeho kinosálu. Přínosem návrhu je velkorysé festivalové kino s adekvátními předprostory. Objekt po obnově disponuje velkým kinosálem a prostorným vstupním foyer, které je možné v případě potřeby dělit pomocí pohyblivých stěn. Na proměnu domu v současnou veřejnou budovu vhodně upozorňuje navrhovaná předsazená poloprůhledná stěna nad vstupem, která se stává hlavním komunikátorem programu budovy. Okolí budovy nabízí dva vzájemně se doplňující typy prostorů: velkorysou nástupní plochu a komorní piazzettu, která komunikuje s Obchodním domem, Hotelem Moskva a Tržnicí. Nicméně využitelnost vstupních prostor pro některé provozy je diskutabilní. Vstupní členité foyer má sice ambici absorbovat velké množství uživatelů a různých aktivit, současně však nenabízí komfortní vazbu na zázemí a hlavně postrádá adekvátní světlou výšku pro potřebnou škálu aktivit. Objekt nenabízí prostor pro projekce, či menší koncerty s kapacitou do 200 lidí. Budova sama a její obnova se stala prioritou na úkor ohledu k současným společenským požadavkům. Velké riziko rovněž představuje nekompromisní plán zachování, lokálního doplnění a vyztužení stávající stropní konstrukce, která je dnes v nevyhovujícím stavu. Návrh je postaven na zachování konstrukce v maximální možné míře s minimem zásahů. Nicméně východiska přístupu jsou z pohledu komise poněkud nepřehledná, protože jsou v poměrně zásadním rozporu s provedeným znaleckým posudkem. Zvolená cesta je z hlediska památkové ochrany ocenění hodná, ovšem s nejasným výsledkem. Z hlediska jevištní technologie disponuje hlavní sál dobrou proporcí a variabilitou. Promyšleny jsou cesty dopravy mobiliáře a dekorací na jeviště a po budově a řešení skladovacích prostor.

Předchozí Další
4. místo
  • Autor Petr Hájek ARCHITEKTI
  • Země Česko
  • Město Praha
Anotace

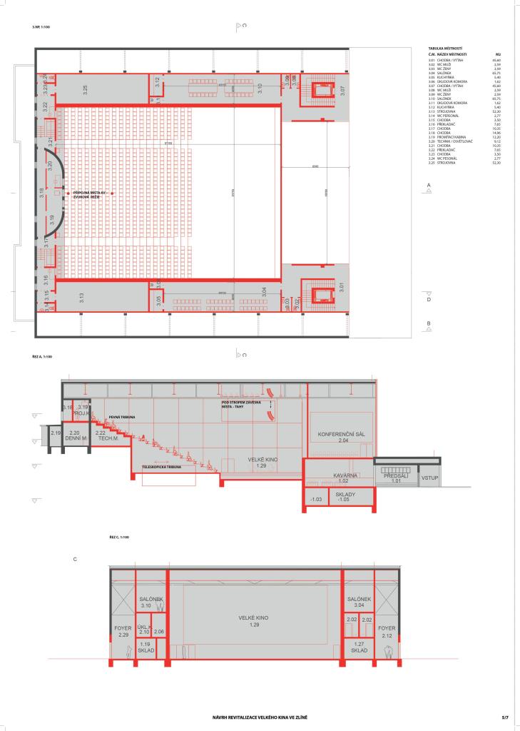
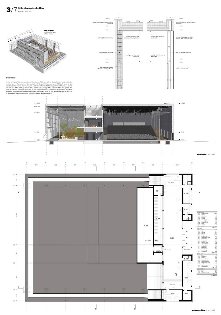
Za zásadní kvalitu Velkého kina považujeme jeho krásnou a charakteristickou siluetu. Naším cílem je obnovit historický objekt v jeho jednoduchosti a tvarové čistotě a doplnit jej o novou vrstvu současné architektury za předpokladu zachování maxima původních konstrukcí a detailů. Cílem je navrhnout budovu s dostatečnou flexibilitou a kapacitou pro pořádání požadovaných kulturních akcí při respektování původních architektonických a urbanistických hodnot. Po rekonstrukci bude kino disponovat malým sálem, velkým sálem a malými konferenčními prostory o celkové kapacitě kolem 1000 míst. Velký sál je univerzálním prostorem s variabilitou vnitřního prostoru a proměnnou akustikou. Malý sál je reprezentativní s úchvatným výhledem na město Zlín a jeho dominantu, Budovu číslo 21. V exteriéru navrhujeme jediný významný zásah v podobě prosklené stěny. Stěna je stíněna plátnem, na které lze ve večerních hodinách promítat. V podvečer přes plátno prosvítá interior malého reprezentativního sálu. Přes den je plátno neprůhledné a z dálkových pohledů vypadá jako plná stěna. Venkovními úpravami připomínáme původní historické řešení. Hlavní vstup ponecháváme na původním místě v čele objektu a nad ním zřizujeme terasu. Před objekt je navrženo malé obdélníkové náměstí, které slouží jako univerzální společenský a veřejný prostor. Architekti: Petr Hájek, Martin Stoss, Nikoleta Slováková, Benedikt Markel Konstrukce: František Denk Akustika: AVTG (Karel Motl)

Hodnocení poroty

Návrh respektuje původní hmotu objektu a představuje relativně ekonomickou obnovu kina. Dominantním prvkem, který artikuluje přestavbu a změnu v užívání objektu současným architektonickým jazykem, je celoplošné prosklení severní fasády. Stávající konstrukci autoři stabilizují za pomocí instalace konstrukce nové, vložené do úrovně stávající střechy, jejíž nosnou funkci eliminují a mohou ji v rámci parciálních úprav zachovat. Vhodná kombinace malého a velkého sálu vytváří předpoklad pro optimální uživatelský komfort při běžném provozu, ale i při větších akcích. Zásadním nedostatkem je však z pohledu každodenního využití uzavřenost objektu vůči svému okolí v parteru a příliš hluboké, tmavé a monofunkční foyer s relativně nízkým stropem. Určitým nedostatkem jsou bloky toalet mezi sálem a koridorem, jež limitují možnosti využití prostor kolem sálu. Z hlediska jevištní technologie návrh představuje zajímavý koncept řešení variabilní akustiky hlavního sálu a disponuje efektivním řešením vysouvací elevace pro velký sál. Návrh představuje možné řešení variability hlavního sálu, pokud by výsuvná podlaha jeviště měla strojní pohon – je variantně uveden, ale není zahrnut v rozpočtu. Konferenční sál je navržen bez elevace a pro diváky je třeba počítat s horší viditelností.

Předchozí Další
5. místo
  • Autor ov architekti
  • Země Česko
  • Město Praha
Anotace

Velké kino – lapidární „bedna“ ve svahu – skrývá svou kvalitu v přímočarosti a efektivitě a odráží se v ní Baťova myšlenka správného poměru cena/výkon/hodnota. Zadáním a prioritou naší práce je dům očistit od nánosů, které mění jeho podstatu. Zároveň má však návrh připravit kino na provoz v dalších dekádách, a to částečně pro jiný stavební program a ve významně lepším standardu užívání, než byl kdy pro dům uvažován. Do původní vyčištěné prázdné schránky budovy navrhujeme novou vestavbu sálu, kterou je možné nazvat „box in box“. Nový sál je zmenšený a umí nabídnout různé formy uspořádání: od velikého kina přes konferenci po menší prostor kina. Sál je obklopen kolem dokola plynoucím prostorem, který obsahuje kavárnu, konferenční místnost a prostory pro dočasné výstavy nebo sezónní trhy a další akce. Rozhraní sálu a ochozu je měkké, zčásti je tvořeno pevnou stěnou, zčásti závěsy, které vytváří akustický a světelný filtr a zároveň umožňují variabilní užití prostoru. Architektonický jazyk přidané vrstvy má být přímý, nekomplikovaný, bez efektů, ale s prostorovým účinkem a velkorysostí. Architekti: Štěpán Valouch, Jiří Opočenský Spolupráce: Romana Bedrunková, Marek Kohout, Ondřej Králík, Jakub Neumann, Františka Podzimková, Viktor Žák Technické řešení: M3M Konstrukce: Marcel Vojanec, Excon Akustika: Aveton

Hodnocení poroty

Návrh respektuje původní hmotu objektu a přináší propracované řešení. Na první pohled pozoruhodný „box in box“ nabízí poměrně flexibilní prostorové řešení. Koncept je však prostorově příliš náročný a nevhodně okupuje původní velkorysé prostory Velkého kina, přičemž vznikají obtížně využitelné koridory po obou stranách velkého sálu. Zajímavé je využití elevace hlavního sálu pro rozšíření zázemí sekundárního sálu. Kladem návrhu je orientace druhého sálu k dosud pouze utilitárně využívané jižní fasádě. Z této strany je však prostor významně limitován požadavky dopravní obsluhy Hotelu Moskva. Nicméně identita a prostorové vlastnosti původní architektury se ztrácejí. Diskutabilním je i vyvýšení stavby z důvodu doplnění o novou nosnou konstrukci nad převážnou částí původní střechy. Návrh představuje z hlediska jevištní technologie jednoduché řešení, nicméně na úkor malé variability uspořádání zejména spodní části hlediště a navazujícího pevného jeviště.

Předchozí Další
6. místo
  • Autor Christophe Hutin Architecture
  • Země France
  • Město Bordeaux
Anotace

Zlínské kino zaujímá důležité místo v historii města. Náš návrh je založen na pokračování výrazné historie této budovy. Cílem obnovy Velkého kina je znovu zpřístupnit toto kulturní místo. Míra zpřístupnění závisí především na možnostech přizpůsobit kino různým programům, různým kapacitám návštěvníků, všem denním dobám i ročním obdobím. Vstup po návštěvníka Velkého kina navrhujeme jako jednotlivé po sobě jdoucí sekvence – nejprve se návštěvník nachází na prostranství před budovou, poté prochází pod krytým vstupem a prosklenými dveřmi vchází do haly. Díky zvětšenému vstupu vzniká příznivější proctor pro pohyb návštěvníků mezi představením a během diskuzí. Velký důraz jsme kladli na odkaz Františka Lýdie Gahury, a sice na promítací sál. Původní střešní konstrukci jsme zachovali v originálním stavu jako odraz zářivé historie a tehdejší technologické vyspělosti. Respektovali jsme rovněž vnitřní objem budovy, který neměníme, a také její ústřední funkci – velký sál. Náš návrh se soustředí na vztah budovy k veřejnému prostoru a kulturnímu programu a na řešení technických problémů ve vztahu k památkové ochraně domu. Revitalizaci kina považujeme za další etapu v životě stavby, která má zásadní význam pro obyvatele Zlína. Architekti: Christophe Hutin, Stéphanie Gasparini, Antoine Mounier Spolupráce: Eva Pavlečková Konstrukce: CESMA Grafika: KUBIK Rozpočet: Kateřina Bačová

Hodnocení poroty

Přínosem návrhu je velkorysý sál s efektním otevřením na terasu nad vstupem. Pozitivem je zajímavý a jednoduchý koncept uspořádání proctor v rámci jednoho sálu s využitím buď celého sálu, nebo komorního uspořádání hlediště. Autoři konstrukčně vyřešili stabilizaci původní konstrukce díky nové superkonstrukci na střeše. Negativem je deformace původní hmoty objektu: navýšením stropu kvůli jeho zesílení a rozšířením vstupního křídla. Objekt disponuje velkým sálem, nemá však vhodné prostory pro akce menších rozměrů. Doplňkový program (konferenční místnosti) je roztroušený a komplikovaně dostupný v různých částech budovy. Efektní otevření severní fasády nad vstupem je sice atraktivní, ale jen těžko by našlo uplatnění v reálném provozu mimo filmový festival. Otázkou zůstávají již dříve zpochybňovaná rozmístění oken na bočních fasádách. Z hlediska jevištní technologie se jedná o zajímavý a jednoduchý koncept uspořádání proctor v rámci jednoho sálu. Nevýhodou je variabilita spodní části hlediště, které bude vyžadovat větší časovou a personální náročnost přestaveb.

Předchozí Další