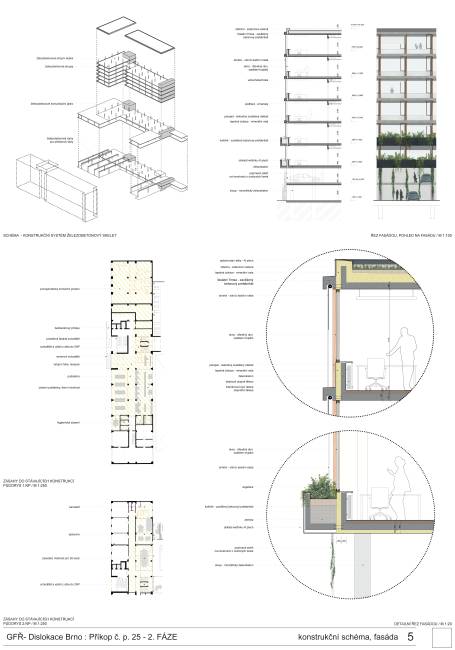
Generální finanční ředitelství - Dislokace Brno: Příkop č. p. 25

Návrh č. 1

M2AU / / Česko — Brno
Návrh č. 2

Kuba & Pilař architekti / / Česko — Brno
Návrh č. 4

Radko Květ / Radko Květ / Česko — Brno
Návrh č. 5

David Mareš / David Mareš / Česko — Praha
Návrh č. 6

RUDIŠ - RUDIŠ architekti / Martin Rudiš / Česko — Brno
Návrh č. 7

CASUA / Oleg Haman / Česko — Praha
Návrh č. 8

Ateliér Velehradský / / Česko — Brno