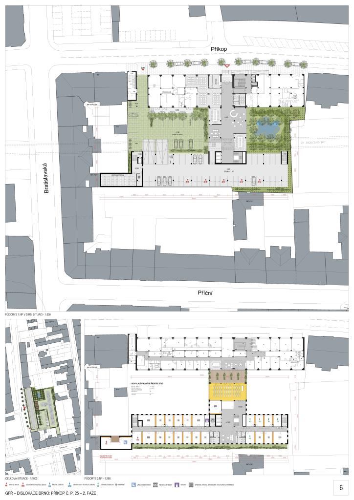
Generální finanční ředitelství - Dislokace Brno: Příkop č. p. 25

1. cena
  • Autor Kuba & Pilař architekti
  • Země Česko
  • Město Brno
Anotace

Dostavba má společnou základnu v úrovni druhého nadzemního podlaží na celé ploše pozemku – tím je vymezen blok nové zástavby. Nad touto horizontální hmotou jsou umístěny dvě 5 a 7 podlažní části. Obě stavby jsou po architektonické stránce řešeny analogicky – po obvodu probíhají vodorovné betonové stropní desky, mezi kterými jsou horizontální pásy oken s pravidelným rastrem dřevěných oken a svislých vodítek stínících rolet. Společná základna je pevnou podnoží s horizontálním oknem, střecha podnože je odpočinkovým prostorem pracovníků finančního úřadu s terasami a se zelení. Součástí podnože je venkovní atrium se zelení a zahradním mobiliářem. Pod podnoží jsou podlaží s parkovacími stáními řešená jako venkovní prostor, fasáda parkovacích podlaží je navržena jako transparentní ocelová síť s popínavou zelení. Původní budově jsme navrhli novou fasádu, která respektuje dnešní proporce a rytmus oken. Původní jednolitou hmotu jsme rozdělili na dvě části zapuštěním svislého pásu v místě schodiště a výtahů. Fasáda je obložena trvanlivým a bezúdržbovým keramickým páskem, okna jsou dřevěná.

Hodnocení poroty

Porota tento návrh shledala za nekvalitnější zejména z provozně-funkčního hlediska, ale také z hlediska profesionality zpracování.

Předchozí Další
2. cena
  • Autor M2AU
  • Země Česko
  • Město Brno
Anotace

GFŘ Příkop je koncept budovy, která vychází ze standardů soudobých kancelářských staveb ve spojitosti s moderní státní správou. Vestavba vnitrobloku přirozeně zahušťuje město a zároveň čerpá ze všech výhod umístění v centru: kvalitní dopravní infrastruktury, krátké docházkové vzdálenosti a pestré nabídky služeb v okolí. Díky solitérnímu umístění novostavby ve vnitrobloku dům poskytuje kvalitní pracovní prostředí na všech patrech, které tak splňují přísné hygienické požadavky na osvětlení kancelářských prostor. Stávající dům Finančního úřadu tvoří důstojný vstupní prostor obou objektů přes společnou recepci. Díky vyčištění a zpřehlednění vstupních prostor dochází ke snadné orientaci. Novou kvalitou a fyzickým pojítkem obou objektů je spojovací trakt, který je vytvářen multifunkčním prostorem. Trakt se dá využít jako větší zasedací místnost pro 120 osob s odděleným vstupem do novostavby nebo se prostor může spojit a stát se rozšířeným lobby s napojením na recepci a jídelnu v 1NP stávajícího objektu. Na konferenční místnost přímo navazuje vzrostlá dvorní zeleň, která vytváří hodnotný relaxační prostor jak pro návštěvníky, tak pro zaměstnance GFŘ. Díky železobetonovému skeletu objekt nabízí značnou flexibilitu. Vnitřní příčky kancelářských místností jsou nenosné, v případě potřeby lehce demontovatelné. Hmota byla prototypována v rámci měřítka celého bloku a širšího okolí. Výsledkem je sedmipatrový objekt v konceptu otevřené budovy. Rovněž byl kladen důraz na kvalitní kancelářské prostředí jak v rámci jednotlivých místností, tak ve sdíleném prostoru centrálního traktu.

Hodnocení poroty

Ambiciózní návrh, který dobře zareagoval na komentáře poroty z první fáze.

Předchozí Další
3. cena
  • Autor Radko Květ
    Radko Květ
  • Země Česko
  • Město Brno
Anotace

Otevřeně řečeno, znáte někoho, kdo rád navštěvuje nemocnici, policii či finanční úřad??? V oblasti navrhování staveb pro výše uvedené typologické účely existuje již delší dobu snaha o jejich humanizaci, transparentnost a ekologické řešení. Z výše uvedeného vyplývá motto návrhu: ELEMENTÁRNÍ VSTŘÍCNOST K LIDEM A ŽIVOTNÍMU PROSTŘEDÍ. „Životní prostředí“ v sobě zahrnuje nejen aspekty pracovního prostředí zaměstnanců a vstřícnost ke klientům, ale i širší ekologické působení v kontextu měst. K naplňování tohoto úkolu, existují již dnes technologické prostředky, (byť dnes nejsou zatím celoměstsky a celostátně systematizovány), které mohou do určité míry pomoci. Kde jinde by se tedy mělo začít, než u institucí státní správy? V rámci daných prostorových a finančních možností (nároky na počty zaměstnanců jsou značné, předpokládané investiční prostředky už tak značné nejsou) se snažíme o relativně vyvážené ekonomicko-environmentálně výhodné řešení.

Hodnocení poroty

Formálně dobře zvládnutý návrh s poměrně náročnou fasádou, která by reálně nejspíš neodpovídala představě vyjádřené vizualizacemi. Diskutabilně byl vnímán zásadní zásah do stávající budovy.

Předchozí Další
Finalista
  • Autor RUDIŠ - RUDIŠ architekti
    Martin Rudiš
  • Země Česko
  • Město Brno
Anotace

Předmětem návrhu je administrativní budova Finanční správy ČR pro 370 zaměstnanců. Funkční náplň je rozdělena do dvou částí. Odvolací FŘ a MF ČR je umístěno do novostavby administrativní budovy situované do vnitrobloku, Odbor hospodářské správy a Odbor zvláštních činností je situován do nadstavby stávajícího objektu v ulici Příkop. Stavebním pozemkem je plocha nádvoří nynějšího Finančního úřadu Brno I., který je součástí velkého městského bloku. Architektura a celkový výraz objektu je záměrně minimalisticky strohý, vyjadřuje racionální konstrukční systém, modulové řešení obvodového pláště a systémové řešení opakujících se dispozic kancelářských podlaží. Šestipodlažní hmota ve tvaru „T “ postavená na vzdušné podnoži je umístěna při východní hranici stavební parcely souběžně s hlavní stávající budovou FÚ. Objemové řešení a formální ztvárnění zřetelně vypovídá o funkci objektu. Na nově navržený hlavní vstup do objektu z ulice Příkop navazuje vstupní hala, která provozně propojuje stávající a navržený objekt. Vstupní hala s vrátnicí, recepčním pultem, vstupem do stravovací části se zvýšenou kapacitou a jednacími místnostmi vytváří přehledný centrální vstupní prostor s přístupem ke komunikačnímu jádru stávajícího objektu a novostavby. Celkem 94 parkovacích stání situovaných na ploše dvora a v objektu splňuje normové požadavky na počet parkovacích stání. Společné prostory chodeb a denních místností se vyznačují snadnou orientací, jednotlivá podlaží jsou otvory navzájem prostorově propojeny. Členění kancelářských pater na kanceláře pro jednoho až tři zaměstnance, velká jednací místnost pro 120 míst a vhodně situované jednací místnosti splňují společně s parametry technického vybavení prostorové a plošné standardy moderní administrativní budovy.

Hodnocení poroty

Předchozí Další
Finalista
  • Autor Ateliér Velehradský
  • Země Česko
  • Město Brno
Anotace

Důslednějším respektováním požadavků na plochu jednotlivých kanceláří došlo k navýšení objemu stavby. Zachovali jsme koncepci zvolenou v I. kole, ale změnili jsem výšky. Na stávající objekt je nastaveno pouze jedno podlaží (statika) a hmota křídla se zvedla na 14 NP. Změna poměru hmot si vyžádala odlišný přístup ke statickému konceptu a nově zahrnujeme do návrhu obnovu hlavní komunikační vertikály. Upravili jsme plochy kanceláří dle upozornění ve výzvě do II. kola. Dále jsme ověřili, že kapacitně splňujeme požadavek na 370 pracovních míst nad rámec stávající kapacity.

Hodnocení poroty

Předchozí Další