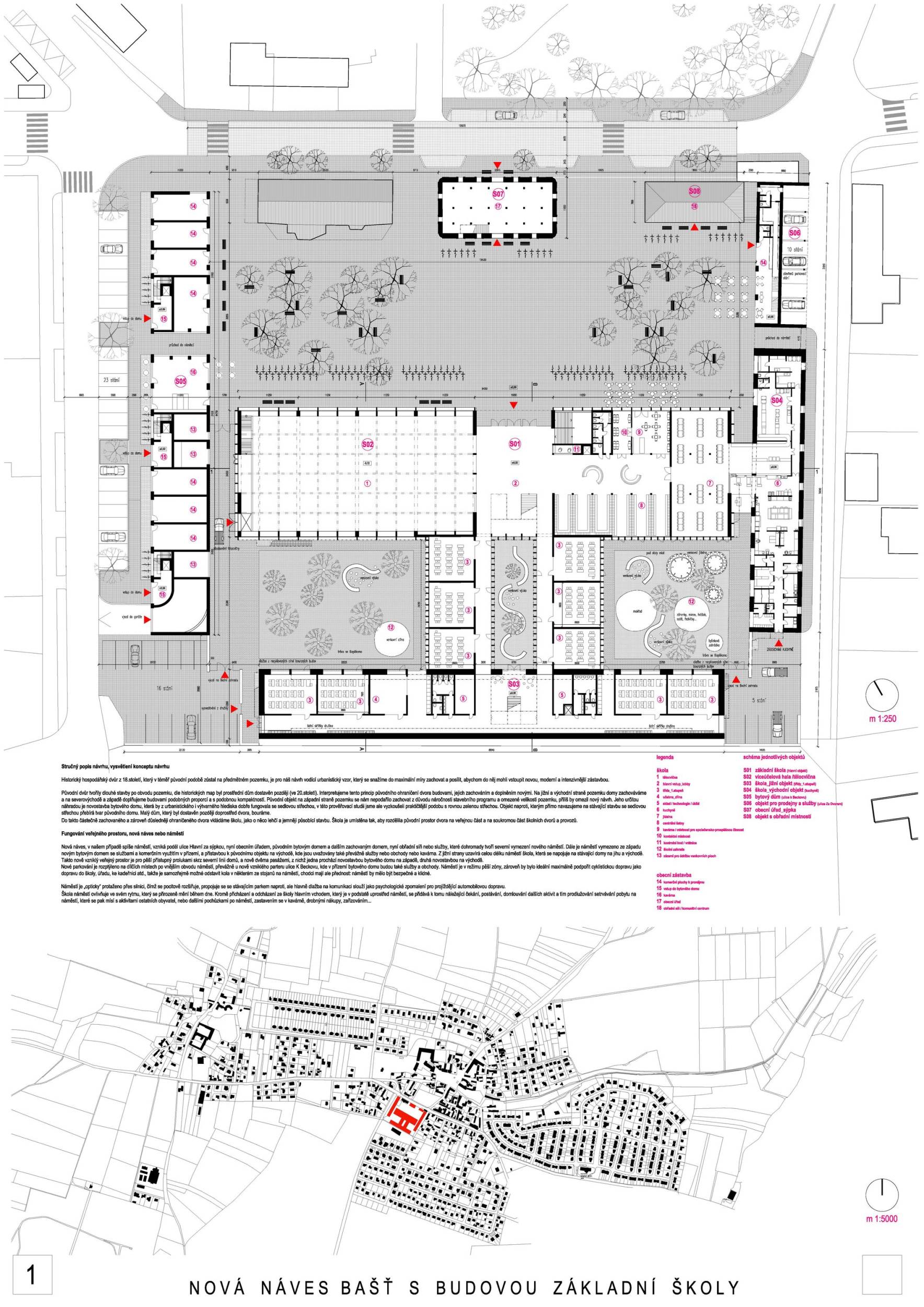
Nová náves Bašť s budovou základní školy

Návrh č. 1

Grulich architekti / David Grulich, Markéta Grulichová, Aleš Tuček, Ivana Mikysková, Kateřina Tichá / Kamenice
Návrh č. 2

MS plan / Michal Šourek, Pavel Hřebecký, Jan Novotný, Michal Stařičný, Jakub Mazur, Juan Pablo Labbé / Praha
Návrh č. 3

mh architects atelier / Michaela Horáková, Petr Průša, Ondřej Brych, Daniel Skočil, Tereza Kalousová / Praha
Návrh č. 4

SOA architekti / Ondřej Píhrt, Ondřej Laciga, Štefan Šulek, Štěpán Tomš, Kateřina Luftová, Irena Vojtová, Dalibor Dvořák, Leanid Pylila, Květoslav Syrový / Praha
Návrh č. 5

Jan Doubek / Soňa Minárechová / Praha
Návrh č. 6

BARAAK arch, Banality Studio a Dvořák & partneři / Barbora Kopečná, Kateřina Hroncová, Miroslav Dvořák, Tereza Hůrská, Marko Čambor, Karolína Myšková, Tomáš Binder, Petr Liška, Hans Hohl, Pavel Kocourek, Zbyněk Škrůtek, Jan Tománek, Jiří Samec, Martin Pulec, Pavel Jakubů, Filip Zelenka / Praha
Návrh č. 7

Radka Kurčíková / Martina Gregorová / Ratiboř
Návrh č. 8

Archsign / Petr Sobotka / Praha
Návrh č. 9

caraa.cz / Martina Buřičová, Štěpán Kubíček, Viktorie Dostálová / Praha
Návrh č. 10

Petr Synovec / Praha
Návrh č. 11

Karel Filsak / Přemysl Jurák / Praha
Návrh č. 12

Petr Bureš / Jan Skoček, Alžběta Kvasničkoová / Praha
Návrh č. 13

Luděk Šimoník / Kryštof Foltýn, Jiří Topinka / Brno