Nová náves Bašť s budovou základní školy

1. cena
  • Autor BARAAK arch, Banality Studio a Dvořák & partneři
  • Team Barbora Kopečná, Kateřina Hroncová, Miroslav Dvořák, Tereza Hůrská, Marko Čambor, Karolína Myšková, Tomáš Binder, Petr Liška, Hans Hohl, Pavel Kocourek, Zbyněk Škrůtek, Jan Tománek, Jiří Samec, Martin Pulec, Pavel Jakubů, Filip Zelenka
  • Praha
Anotace

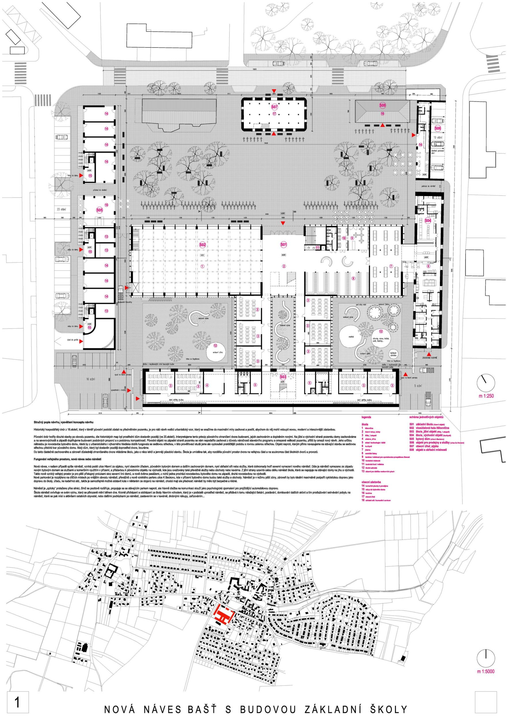
Historický hospodářský dvůr z 18. století, který v téměř původní podobě zůstal na předmětném pozemku, je pro náš návrh vodící urbanistický vzor, který se snažíme do maximální míry zachovat a posílit, abychom do něj mohli vstoupit novou, moderní a intenzivnější zástavbou. Do takto částečně zachovaného a zároveň důsledněji ohraničeného dvora vkládáme školu jako o něco lehčí a jemněji působící stavbu. Śkola je umístěna tak, aby rozdělila původní prostor dvora na veřejnou část a na soukromou část školních dvorů a provozů.

Hodnocení poroty

Porota považuje tento návrh za jedno z nejzajímavějších řešení, možná vůbec nejpěknější z hlediska respektu vůči původnímu rázu vesnických stavení. Oceňuje, že předkládaná věc je jasná, obecná, pevná, přehledná a čistá. Návrh aktivuje situaci i stávající struktury paměti, potvrzuje sílu a nosnost historického vzorce. Revize bude nutná u dopravního řešení. Architektonické pojetí návrhu je solidní, kvalitní, autoři používají původní materiály nebo povrchy vhodné do této lokality (kámen, cihla, dřevo…). Návrh vykazuje schopnost redukce, fázování i růstu. Nereprezentuje sentiment, ale civilnost.

Předchozí Další
2. cena
  • Autor Luděk Šimoník
  • Team Kryštof Foltýn, Jiří Topinka
  • Brno
Anotace

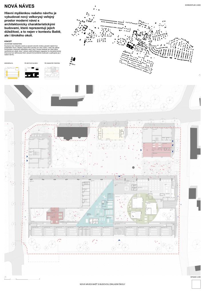
Hlavní myšlenkou našeho návrhu je vybudovat nový velkorysý veřejný prostor moderní návsi s architektonickými budovami, které reprezentují jejich důležitost, a to nejen v kontextu Baště, ale i širokého okolí. Současný stav řešeného území je výrazně ovlivněn ztrátou původní náplně hospodářského dvora. Objekty, které dříve sloužily pro chov zvířat, a daly tak základ současnému urbanismu nejbližšího okolí, jsou z mnoha hledisek jen velmi těžce využitelné pro záměr obce. I přesto naším přístupem reagujeme na charakteristický čtvercoový tvar definovaný třemi výrazně horizontálními budovami a aplikujeme jej v našem návrhu.

Hodnocení poroty

Hrana širšího centra obce, jak tuto linii autoři nazývají, i nízká silueta funguje. Škole předsazené domy drží fazonu. Vysokou cenou je eliminace stodoly, ztráta kusu paměti a kotvy. Veřejný prostor je přehledný a vhodně orientovaný, sympatické je oddělení školních venkovních prostor od veřejné návsi. Dopravní řešení by však potřebovalo revizi. Provoz školy je navržen dobře a bezkolizně, je kompaktní a efektivní. Z hlediska půdorysné velikosti by určité části šly navíc optimalizovat. Vymezení jednotlivých barevných tvarů v objektu je sice formalismus, kompozice, která se nepropisuje do konstrukcí ani prostorů, ale pro žáky bude sympatické.

Předchozí Další
3. cena
  • Autor SOA architekti
  • Team Ondřej Píhrt, Ondřej Laciga, Štefan Šulek, Štěpán Tomš, Kateřina Luftová, Irena Vojtová, Dalibor Dvořák, Leanid Pylila, Květoslav Syrový
  • Praha
Anotace

Nová náves je navržena jako živý protipól historické staré návsi. Mezi sebou svírají park a upravenou část hlavní ulice s dominantní budovou obecního úřadu v barokní sýpce a společně tvoří rozšířené centrum obce. Jde o nový komunitní a obchodní veřejný prostor, který obohacuje obec o vitální funkce, aniž by byl v konfliktu s jejím původním rurálním charakterem. Areál základní školy, který dominuje jižní straně návsi, obklopuje velkorysý vnitřní dvůr jako reminiscence původního statku uzavírá centrum obce.

Hodnocení poroty

Exkluzivní pojetí urbánního klastru má tvořit nový protipól historické staré části. Velkorysá jednota historického vzorce je zde nahrazena poněkud módní, rafinovanou, a i nesourodou morfologickou sestavou. Je to velmi přívětivá podoba moderních vesnických staveb, z hlediska souladu s místem patrně nejlépe zvládnutá. Obytné domy už ale směřuji k tradiční městské výstavbě. Škola, ač velmi rozlehlá a plošně naddimenzovaná, tak je v jednotlivých objemech navržena adekvátně a citlivě. Možná tomu nahrává sporné a ekonomicky náročné zahloubení v celém půdorysném rozsahu včetně dvora.

Předchozí Další
Mimořádná odměna
  • Autor caraa.cz
  • Team Martina Buřičová, Štěpán Kubíček, Viktorie Dostálová
  • Praha
Anotace

Vytváříme nové centrum obce, která se mění v městečko. Hledáme propojení historické zástavby se současnou architekturou. Respektujeme a principiálně reprofilujeme stávající urbanistickou figuru barokního hospodářského dvora. Konceptem urbanictického řešení je zachování stávající jednoduché formy výstavby po bvodu řešené plochy a doplnění zástavby dovnitř dispozice včetně centrální věže s nejdůležitější funkcí umístěné doprostřed nádvoří.

Hodnocení poroty

Porota udělila návrhu mimořádnou odměnu, protože v něm oceňuje přístup směřující ke kompoziční i tvarové ikoně. Návrh porotu zaujal odvahou postmoderních objemů, jejichž vnitřní uspořádání je navíc také funkční, a jejich téměř brutalistní estetikou, a to se všemi klady a zápory. Návrh navíc představuje hodnotný názor na využití sýpky – pro méně kolizní funkci než úřad, kterému je věnován nový objem věže.

Předchozí Další
Mimořádná odměna
  • Autor Karel Filsak
  • Team Přemysl Jurák
  • Praha
Anotace

Bývalý panský dvůr č. p. 42 se sýpkou představuje v Bašti ojediněle zachovanou historickou památku připomínající barokní historii obce. Novou zástavbu cítíme povinnost zachovat utilitární řešení hospodářského dvora. Rádi bychom odkryli a ukázali historickou stopu, zvláště v obci, která o většinu svého architektonického dědictví již přišla. Nové náměstí je v návrhu vymezeno mezi historickými hospodářskými stavbami a novou zástavbou, které navazuje na charakter barokního dvora.

Hodnocení poroty

Porota udělila návrhu mimořádnou odměnu, protože v něm oceňuje, ač právě svou strohostí neoslovil samotného zadavatele, čistotu schématu a jasný půdorysný plán – příčné náměstí spojuje dvě nejvýznačnější, a pro nové účely aktivovaná historická rezidua, je klíčem nové adjustace.

Předchozí Další
Mimořádná odměna
  • Autor Petr Bureš
  • Team Jan Skoček, Alžběta Kvasničkoová
  • Praha
Anotace

Urbanismus návrhu kontextuálně navazuje na kulturně historický vývoj, který zde probíhal od pozdního baroka. Demolice objektu pro chov zvířat je nutnou součástí návrhu, aby byl vytvořený dostatečný prostor pro novostavbu školy a bytového domu. Pozice a členění novostaveb se však vztahuje k původní stopě objektů. Návrh tvoří solitérní domy o jasném půdorysu. Náves je navržena tak, aby byla průchozí a prostupná a architektura budov dotváří dojem utilitárnosti prostředí a kontextu budovy.

Hodnocení poroty

Porota udělila návrhu mimořádnou odměnu, protože v něm spatřuje a oceňuje alternativní, tichou a klidnou kvalitu – architekturu askeze a šetrnosti v mnoha ohledech.

Předchozí Další