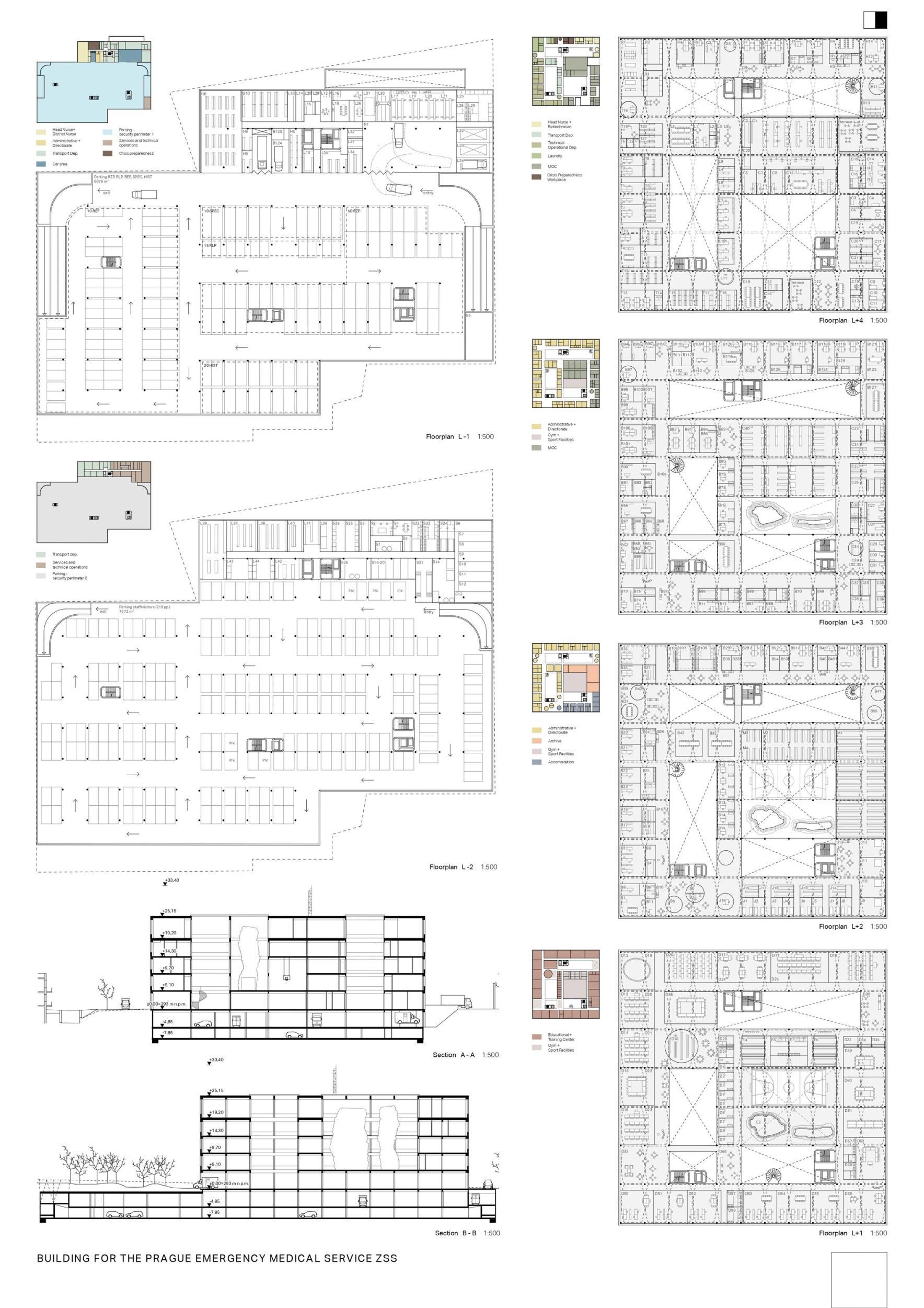
Administrativně-technická budova Zdravotnické záchranné služby

1.cena
  • Autor PLURAL
  • Team Martin Jančok, Gabriela Smetanová, Michal Janák, Zuzana Kovaľová, Maroš Kostelanský, Anastasia Popova, Lujza Hostačná
  • Bratislava, Slovensko
Anotace

Návrh nabízí pragmatickou, funkční a logicky uspořádanou budovu, která současně poskytuje svým zaměstnancům prostory a prostředí pro odpočinek nezbytný při jejich často stresující práci. Představuje robustní a kompaktní budovu sestávající z několika na sebe položených programových bloků. Rozdílná šířka (hloubka) těchto bloků umožňuje jejich vzájemný posun, což vytváří prostor pro velkorysé střešní zahrady. Nejdůležitější část budovy – operační centrum – působí jako maják nad městem.

Hodnocení poroty

Projekt je chytrou reakcí na velmi složitý soubor prostorových programů, který snadno zapadá do kontextu, ale zároveň představuje jedinečnou identitu pro záchranáře. Je cíleně pragmatický tam, kdy je funkčnost nezbytná, a zároveň nabízí ambiciózní image důležité služby, která zajišťuje bezpečnost Prahy. Právě tato kombinace robustního pragmatismu a ambiciózního výrazu dělá z této budovy vítězný návrh. Porota oceňuje pokrok dosažený od prvního kola, jehož výsledkem je velmi dobře fungující projekt, který si přitom zachoval svou identitu. Vertikální oddělení bezpečnostních perimetrů v kombinaci s různou hloubkou dispozic zajišťuje přizpůsobivost a flexibilitu pro další případný rozvoj projektu. Zejména ZOS zasazené do samostatného objemu na střeše budovy umožňuje optimální uspořádání a dodržení požadovaných provozních vazeb. Porota oceňuje strategické i symbolické umístění ZOS na střeše i jasný formální jazyk návrhu. Budova působí jako stavba infrastruktury, která byla navržena pro konkrétní kontext a vhodně odráží svou funkci. Fotovoltaické zastřešení venkovních teras sloužící zároveň ke stínění jižní fasády nabízí nový zážitek pro venkovní odpočinek a pocit ochrany. Jeho koncept byl vypracován a prezentován dostatečně přesvědčivě a porota v něm vidí potenciál při dalším rozvoji. Celkový „ekotechnologický“ koncept budovy je logický a využití fotovoltaiky a dešťové vody má nejen ekologický dopad, ale přispívá i k celkovému architektonickému výrazu budovy. V rámci interiéru budovy je myšlenka propojení auly a tělocvičny v jednom prostoru vítaná jako optimalizace využití prostoru.

Předchozí Další
2.cena
  • Autor Martinez Morero Recabarren Estudio
  • Team Carlos Nahuel Recabarren, Manuel Alberto Martinez, Rocío Palacios, Gimena Ponce, Camila Teseyra, Antonella Montanaro
  • Barcelona, Španělsko
Anotace

Centrum Zdravotnické záchranné služby hl. m. Prahy musí být hyper propojeno s městem a zároveň před ním téměř skryto. Musí zůstat nepovšimnuto až do té míry, že se rozpustí ve svém kontextu. Jak může tak velká a aktivní budova nepůsobit ve městě rušivě? Jak může zůstat nepovšimnuta, až téměř zmizet na dohled? Aby se s touto výzvou vypořádala, budova jednoduše ustupuje od obvodu pozemku a otevírá dvě nové pohybové osy na svých dvou frontách. Dále je navržen alternativní přístup pro sanitky, který se napojí přímo na Městský okruh malým tunelem, aby nedocházelo k narušení okolí..Budova dává městu prostor, aby kolem ní mohlo nerušeně proudit.

Hodnocení poroty

Porota oceňuje optimalizaci půdorysů a zpracování připomínek z prvního kola soutěže. Dále také velmi konstrukční pojetí s 9m rastrem, hybridní materialitu a zavedení dřeva jako stavební materiál v rámci českého stavebního zákona. V opačném případě, co se týká materiálu, polykarbonátová fasáda vyvolává obavy z údržby a její trvanlivosti. Klimatický koncept je inovativní a navrhuje pasivní řešení, tedy zmenšení klimatizovaného prostoru a využití atria jako přirozeného nárazníku a komína. Návrhy ještě neuvádí různé možné režimy provozu. Ačkoliv zní překysličování použitého vzduchu v atriu lákavě, porota ale není zcela o fungování přesvědčena. Umístění ZOS na konci budovy je zcela jasné, ale poloha jádra hned vedle něj poněkud omezuje možné rozšíření ZOS. Málo přesvědčivé je pro porotu otevření fasád kolem simulačních místností, které působí atraktivně, ale tyto prostory spadají do bezpečnostního perimetru, a proto musí mít řízený přístup. Dále bezpečnostní perimetr narušuje točité schodiště na nádvoří. Kontrola přístupu a oplocení areálu jsou řešeny přesvědčivě, subtilní gesto vstupního schodiště překračujícího oplocení. Napojení na městský okruh není možné, ale lze ho vynechat. Velmi přitažlivě působí čistá estetika budovy, ale je otázkou, zda je to vhodný jazyk pro daný kontext periferií a identitu klienta/uživatele.

Předchozí Další
3.cena
  • Autor Atelier bod architekti
  • Team Vojtěch Sosna, Jakub Straka, Jáchym Svoboda, Karolína Urbánková, Klára Pavelková
  • Praha
Anotace

Objekt ZZS v sobě spojuje celou škálu typologicky různých provozů. Pozemek má řadu významných prostorových omezení. Vzhledem k robustnosti programu domu je účelné pro provozní přiblížení vnitřních vazeb maximálně zkompaktnit hmotu objektu. Architektonická forma následuje výrazem význam domu – jde o zásadní objekt celostátní infrastruktury. Jde tedy o vážný dům, jehož formální pojetí vychází z klasických antických kompozičních principů jako je tektonika, řád, rytmus, symetrie a gradace. Přísná pravidelnost fasády není pouhým divadlem, jde o pravdivé přiznání vnitřního členění, vycházejícího z nosné konstrukce objektu – z modulové osnovy 8m.

Hodnocení poroty

Urbanistické řešení, doplněné o novou prostorovou dominantu v místní prostředí, působí na porotu velmi přesvědčivě. Kvalitou návrhu je určitě vyrovnanost všech čtyř fasád, kdy orientace domu je dána detailem parteru. Porota však stále vidí negativně těžký racionální výraz návrhu, odkazující spíše na „váženou tradiční korporaci“. Monobloková sevřená forma přináší výhodný poměr mezi objemem budovy, podlahovou plochou a obálkou budovy, návrh tedy konstruktivně nastavuje výši stavebních a provozních nároků. Racionální konstrukční a prostorové řešení přináší možnosti dalšího projekčního vývoje. Je nutné zvážit čistý konstrukční modul 8x8m z pohledu šířky čistých parkovacích stání a geometrie obsluhy podzemní garáže. Parkování tří osobních vozů je v tímto modulu na hraně, parkování tří sanitních vozů je však již nemožné, počet navrhovaných parkovacích míst tak bude ve skutečnosti značně redukovaný. Objednavatel zadal plošný podlahový standard, který tomuto návrhu chybí, jedná se zejména o plošnost administrativní části a jejího zázemí, jež je o 30% ‐ 40% poddimenzováno. Odborná část poroty nesouhlasí s řešením sálu „ZOS“, kde je nutné v návrhu provést provozní a konstrukční úpravy.

Předchozí Další
Finalista
  • Autor PEER COLLECTIVE
  • Team Daniel Struhařík, Ondřej Machač, Jan Urbášek, Natálie Ivkovičová, Georgi Dimitrov, Markéta Čermáková, Radek Zabloudil, Václav Centner, Jan Bureš
  • Brno
Anotace

Administrativně-technická budova ZZS bude primárním zázemím všech pražských výjezdových skupin zdravotnické záchranné služby, stěžejní součástí návrhu je tedy pro nás téma „komunikace“. Ať už jde o komunikaci virtuální, provozní, či mezilidskou, ve všech případech má potenciál zachraňovat lidské životy. Bezpečná, chytrá a efektivní organizace domu se tedy stala zásadním předpokladem návrhu. Odpovědí je motiv spirály, která stoupá po jednotlivých bezpečnostních stupních programu a tvoří tak základní páteř pro organizaci provozu celého domu.

Hodnocení poroty

Porota shledává v návrhu výrazný posun v redukování příliš extenzivního zacházení s volumetrií tím, že hmoty jednotlivých bloků byly přisazeny k sobě. Pozitivně porota hodnotí i řešení hlavního vstupu z úrovně přízemí do prostorové zhuštěné haly s řadou úrovní a průhledů nebo vtipný koncept volumetrie „spirálovitého větrníku“, které navazuje na prostorovou a provozní hierarchii dopravní obsluhy a garáží. Dále také dodržení a propsání typologické čistoty a kázně do principu: druh funkce = samostatný objem. Zvolený prostorový koncept se však ukazuje zároveň jako limitující s řadou obtížně řešitelných dopadů. Problematické se zdá obsazení jednoho z objemů v nadzemní části parkingem. Byť je tento program míněn jako druh prostorové rezervy, působí spíše dojmem hledání náplně pro 4. objem. Obecně lze konstatovat, že dedikování hmot jednotlivým funkcím, včetně separátních komunikací limituje flexibilitu budovy pracující s přístupovými perimetry. Dále rozdělení do velikého počtu objemů vytváří vysoký poměr ploch pláště vůči užitné ploše a značně navyšuje množství HPP. Problematické se jeví též konstrukční výšky podlaží administrativní části, která činí 3,3 m, a jsou tedy výrazně poddimenzované.

Předchozí Další
Finalista
  • Autor Apropos Architects
  • Team Michal Gabaš, Tomáš Beránek, Rudolf Nikerle, Laura Lukáčová, Kryštof Jireš
  • Chrudim
Anotace

Koncept navrženého domu vychází z okolní zástavby a urbanismu přilehlého sídliště Prosek. Novostavba ZZS je tvořena výrazným podlouhlým deskovým domem – solitérem, umístěným harmonicky ve vztahu ke geometrii prostorového plánu území. Objekt navazuje na linearitu okolních domů, akusticky chrání sousedství od hluku a prašnosti ulice Liberecká a logicky uzavírá celou lokalitu.

Hodnocení poroty

Porota oceňuje vývoj a úpravy od prvního kola, snahu vytvořit příjemné pracovní prostředí, racionalitu návrhu a také celkový výraz s konstrukčními výjimkami u tělocvičny a auly. Také dopravní koncept a myšlenka oddělit automyčku a opravnu do samostatného objemu působí jako silný nápad a velmi dobře funkční řešení. Vítána je také snaha o snížení prosklení fasády, ale z návrhu se tak zároveň vytratila síla přehledné struktury s měnícím se rytmem. Navržené dispoziční řešení má určité slabiny zejména v dodržení požadovaných bezpečnostních perimetrů. Návrh ZOS působí, že mu nebyla věnovaná dostatečná pozornost vzhledem k jeho významu k budově. S ohledem na nízkou hloubku budovy je také diskutabilní nutnost vloženého atria. Navržená jednoduchá a kompaktní forma působí v urbanistickém kontextu velmi dobře, nicméně její proporce zároveň představují omezení pro prostorové uspořádání programu, která nelze překonat (například funkčnost/pozice ZOS nelze zlepšit bez závažných změn dispozic).

Předchozí Další
Finalista
  • Autor Biuro Projektów Lewicki Łatak + Bureau Babyn Michałowski
  • Team Kazimierz Łatak, Ernest Babyn, Michał Michałowski, Anna Babyn; Piotr Dombrowski (krajinářská architektura); Tomáš Vejražka (PPU - doprava); Jan Tománek (PROBS - požární řešení)
  • Krakov, Polsko
Anotace

Budova pro Zdravotnickou záchrannou službu v Praze je charakterizována mnoha funkčními sekcemi s různými požadavky na prostor, světlo a velikost. Ty dohromady tvoří jednu instituci, ve které je každá její část klíčová pro efektivní a bezproblémové fungování celku. Návrh klade důraz na tuto specifickou stránku programu a navrhuje budovu fungující na základě opakující se subtilní a zároveň flexibilní struktury. Konstrukce budovy funguje jako kostra, do které jsou umístěny místnosti a funkce různých sekcí. Plné objemy propojují tři krytá atria, vytvářející vnitřní svět pro celou instituci Zdravotnické záchranné služby.

Hodnocení poroty

Porota oceňuje ambice projektu, oceňuje též celkovou kompaktnost, snahu vyřešit programový rébus v zajímavé prostorové konfiguraci, úvahy o modularitě fasády a racionalitě rastru. Oceňována je konstrukční optimalizace nosníků, fasády a jejich využití jako okrasného prvku, ale průnik fasády a nesoulad s prostorovým modulem však vytváří různé problémy. Negativně se jeví prostorová organizace a orientace v budově, která je velmi obtížná, protože některé osy nepokračují nebo kolidují s jádry, umístěnými uvnitř atrií. Stejně tak nástavba podlah se jeví jako předimenzovaná a podhled je v rozporu s ornamentálními trámy a výška budov dostatečně nepodporuje výšku antény. V tomto případě by bylo nutné zvýšit poslední podlaží. Výsledek však postrádá koordinaci těchto různých ambicí a nedaří se mu vytvořit přesvědčivé prostory. Mřížky sloupů nejsou v souladu s prostorovými moduly, mřížka fasády nekoresponduje se strukturální mřížkou a nepodporuje modularitu půdorysů. Z toho vyplývá, že jádra a šachty jsou v rozporu s rastrem. Dále tvary střech na ZOS jsou poněkud libovolné.

Předchozí Další