ZŠ Křižná - přístavba tělocvičny

  • Vítězný návrh

    AXXI / Luděk Šimoník, Jan Stolek, Ingrid Spáčilová, Anna Kabeláčová, Šimon Klein / Brno

  • Zadavatel

    město Valašské Meziříčí

  • Typ soutěže

    otevřená architektonická soutěž o návrh, 1 fáze

  • Výsledky

    15.4.2024

  • Ceny a odměny

    400 000 Kč - 300 000 Kč - 150 000 Kč - odměny 50 000 Kč

  • Stav

    příprava JŘBU

VMG

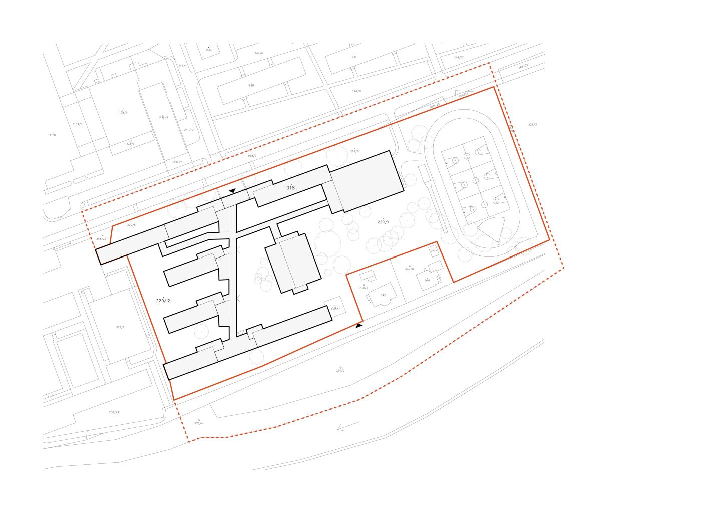
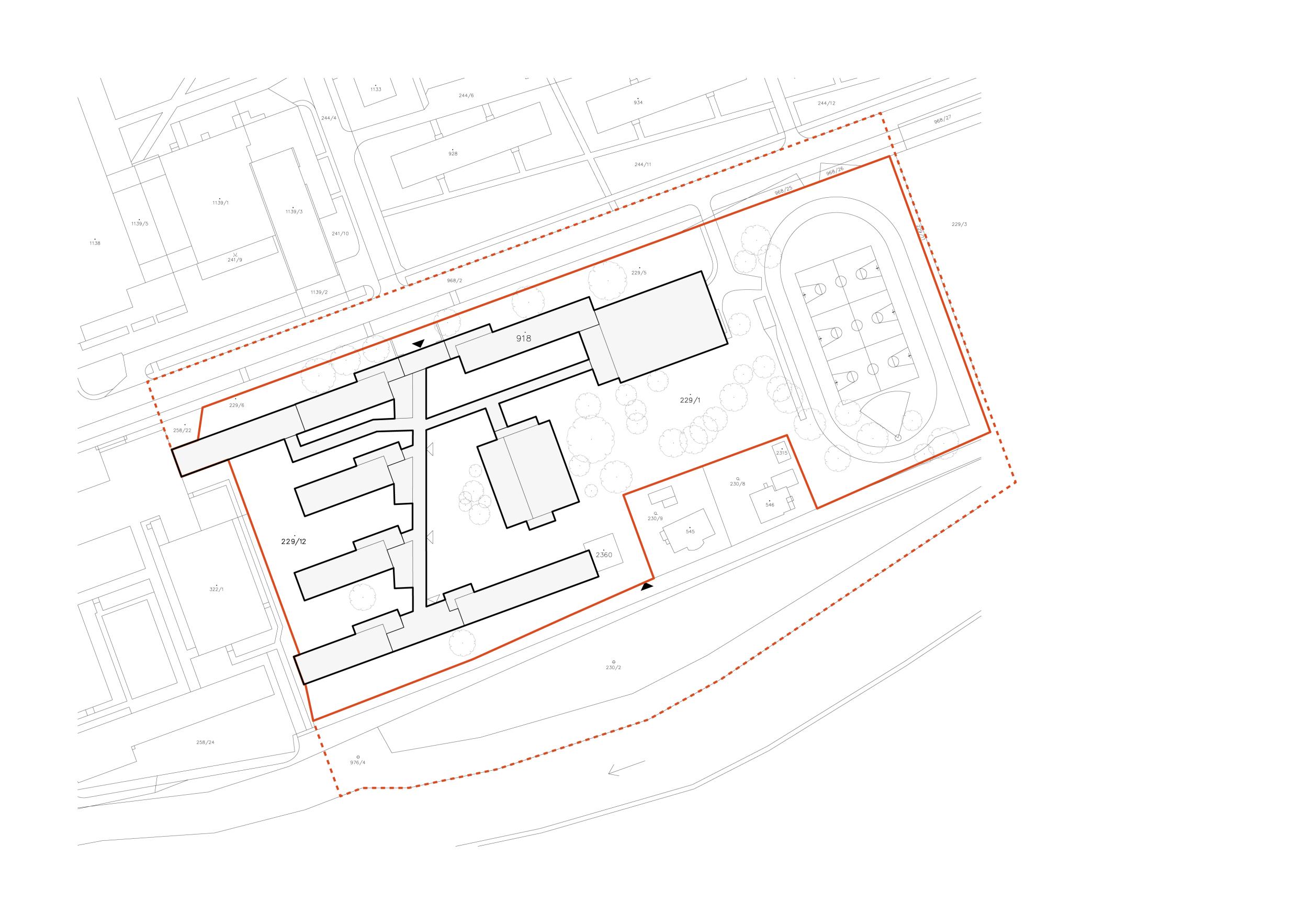
ZŠ Křižná je největší základní školou města Valašské Meziříčí a nachází se v těsné blízkosti centra. Aktuálně ji navštěvuje 650 dětí I. i II. stupně. Sportovní hala školy již dlouhodobě nevyhovuje dnešním požadavkům na sportovní výuku a město zároveň již delší dobu plánuje výstavbu nové sportovní haly, která by doplnila potřebu sportovišť ve městě. Město se proto rozhodlo pro umístění nové haly do areálu školy, kde by sloužila nejen potřebám školy, ale mimo školní dobu i městu. Cílem proto je, aby nová hala zajistila vhodné sportoviště nejen pro školáky ZŠ, ale nabídla i veřejnosti prostor pro trénink a sport.

Porota

Janica Šipulová

předsedkyně poroty

Po pětiletém působení ve Vídni se svým partnerem založila architektonickou kancelář consequence forma, sídlící v Brně. Napojení na vídeňskou architektonickou scénou přináší spolupráci na nejrůznějších projektech, například BKK-3 v německém Regensburgu. Nedílnou součástí architektonického studia je zaměření se na kvalitní urbanismus a veřejný prostor, kdy přesná analýza stávajícího prostředí definuje budoucí změnu.

Zdeněk Sendler

Patří mezi nejvýraznější krajinářské architekty u nás. Absolvoval zahradní a krajinářskou tvorbu Vysoké školy zemědělské v Lednici. V roce 1990 založil vlastní studio Ateliér zahradní a krajinářské architektury který spolupracuje
s architektonickými ateliéry, ale také se stavebními a inženýrskými profesemi, se sochaři či výtvarníky. Mezi jeho nejznámější projekty patří Denisovy sady v Brně nebo obnova Jiráskových sadů v Litoměřicích.

Gabriela Smetanová

Gabriela vystudovala architekturu na Slovenské Akademie VSVU. Je členkou redakčního týmu slovenského webu o architektuře a umění MAG DA. V současnosti pracuje v atelieru Plural který se dlouhodobě věnuje reinterpretaci modernistického dědictví a je úspěšný v soutěžích na Slovensku a zahraniční. Posledním úspěchem je první cena na sídlo Pražské zdravotnické záchranné služby na Proseku.

Jan Mach

Vystudoval Fakultu architektury na liberecké TUL. V roce 2008 založili spolu s Janem Vondrákem a Lukášem Holubem
architektonické studio Mjölk, které sídlí také v Liberci. Soustředí se především na práci se dřevem jako stavebním materiálem. V tomto roce získali hlavní cenu v soutěži Grand Prix Architektů 2023 za Sídlo Kloboucké Lesní.

Jana Stachová

náhradnice

Studovala architekturu na Fakultě architektury ČVUT. Je spoluzakladatelkou ateliéru boq architekti, který založila se svým partnerem Miroslavem Stachem v roce 2014. Charakteristickým znakem jejich tvorby je práce s prostorem, která začíná u promyšlené dispozice, které věnují velkou péči. Díky tomu jejich tvorba řeší širokou škálu měřítek - od interiérového designu po rodinné a bytové domy, až po veřejný prostor.

Milena Medková

ředitelka ZŠ Křižná

Yvona Wojaczková

místopředsedkyně poroty

místostarostka města Valašské Meziříčí

Petr Nachtman

místostarosta města Valašské Meziříčí

Antonín Hořín

náhradník

zastupitel města Valašské Meziříčí

Ondřej Chybík

náhradník

městský architekt města Valašské Meziříčí

Předchozí Další