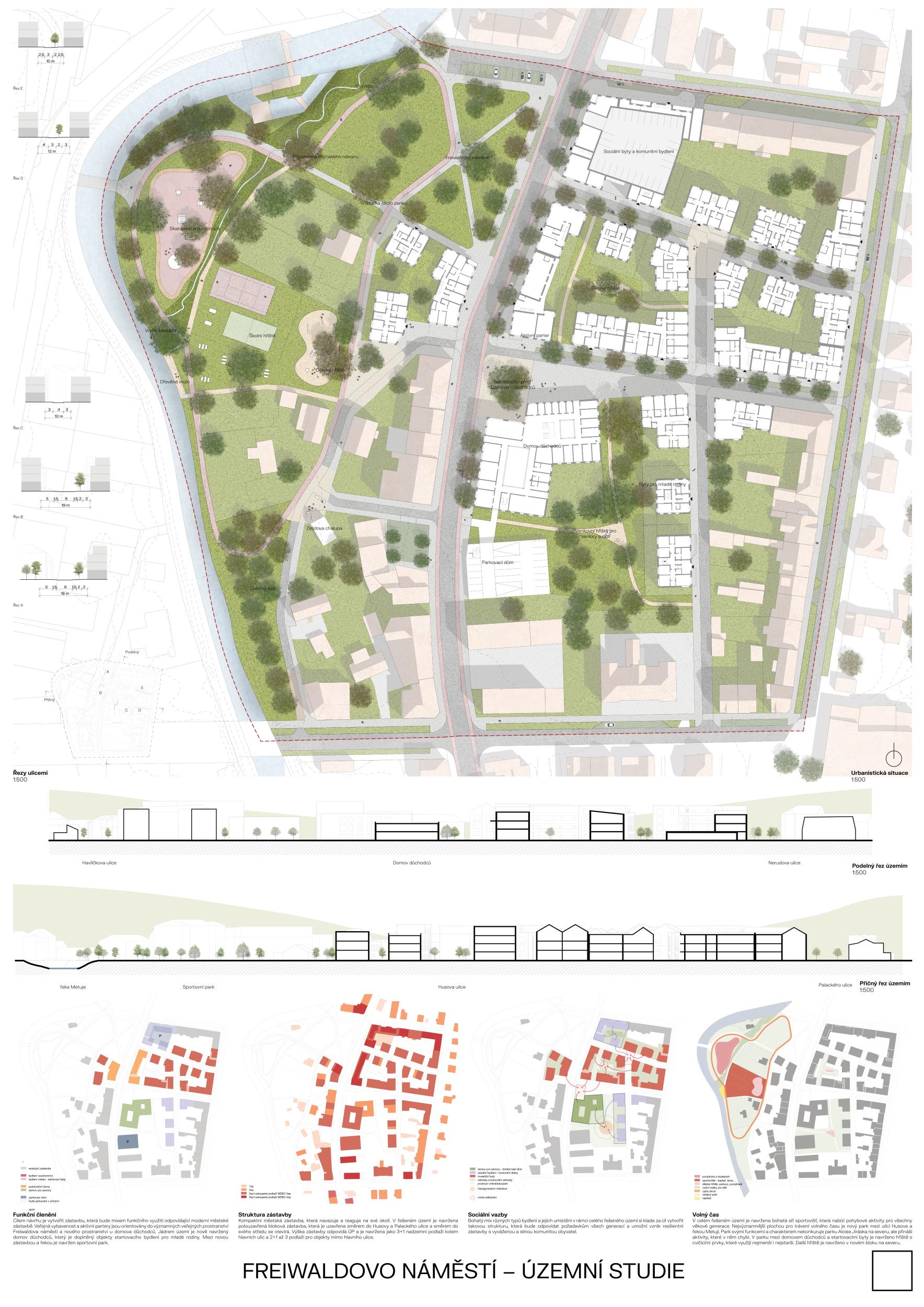
Hronov: Freiwaldovo náměstí - Územní studie

1.cena
  • Autor re:architekti studio
  • Team David Pavlišta, Ondřej Synek, Jan Vlach, Jiří Žid, Jan Čech, Martin Kunc, David Pfann (dopravní řešení)
  • Praha
Anotace

Freiwaldovo náměstí obklopuje ze západu park, z jihovýchodu vesnická zástavba chalup, ze severu město vznosných domů, z východu vilková zástavba. Středem území pak prochází jeho osa původní cesta z Hronova do Velkého Poříčí. Všechny tyto typologie dávají ve městě smysl a to i v měřítku pár bloků řešeného území, kde je v návrhu různým způsobem rozvíjíme pro dnešní situaci. Okolo Freiwaldova náměstí tak vznikne bydlení pro seniory, městské řadové domy pro rodinné bydlení, bytové domy umožňující diverzitu bydlení (velikost, vlastnická forma) a s živým parterem v nejexponovanějších místech, park nejen s hřišti pro děti a teenagery a celkově město prostupné pro všechny.

Hodnocení poroty

Porota v návrhu oceňuje realistickou a racionální urbanistickou kompozici a kombinaci typologií, která odpovídá kontextu místa a zároveň umožňuje efektivní a ekonomické řešení dopravy v klidu. V centru návrhu stojí propracované řešení Husovy ulice, které spojuje Freiwaldovo náměstí s uličním prostorem a rozvíjí ho dál směrem na jih v podobě nově vznikajícího náměstí před domovem pro seniory. Ve vztahu k Freiwaldovu náměstí porota hodnotí pozitivně zachování historických stop území a vymezení uliční fronty kolem náměstí. Jako hodnotnou porota vnímá velkou zahradu k budově domu seniorů, stejně tak jako řešení jejího parteru. Návrh pracuje s čitelnou hierarchizací a jasným vymezením majetkových vztahů nezastavěných prostor. Veřejné prostory soustředí podél Husovy ulice, v části navrhované zástavby naopak pracuje s veřejnými prostory šetrně – ve prospěch města a následné údržby. Porota dále oceňuje práci se širšími vztahy a návazností krajinářské části na druhý břeh řeky se zdůrazněním zlepšení jejich propojením, zároveň vítá navrácení náhonu v podobě subtilního vodního prvku. Samotné detailní formování veřejných prostor krajinářské části porota shledává jako slabinu, která vyžaduje podrobné rozpracování s důrazem na přesvědčivou krajinářskou koncepci. Kladně je hodnocen rozmanitý a adekvátní mix typologií, otázkou však zůstává proveditelnost navržených třípodlažních řadových domů v kontextu města Hronova.

Předchozí Další
2.cena
  • Autor M2AU s.r.o.
  • Team Filip Musálek, David Helešic, Linda Obršálová; spolupráce: Eliška Krejčí, Michaela Kirnerová, Adéla Orságová, Katarína Palacková, Filip Sovíček
  • Brno
Anotace

Místo čerpající z kontextu svého okolí s promyšlenou hierarchií veřejných prostranství postavené na symbióze krajiny a města, to jsou základní myšlenky urbanismu nové části Hronova. Navržená zástavba je založena na jasných pravidlech s respektem k majetkovým poměrům a projednávanému územnímu plánu, zlepšuje prostupnost a využitelnost území, je přátelská ke svým uživatelům a vytváří místo pro každodenní život, nákupy, kávu na zahrádce před kavárnou nebo odpočinek ve stínu stromů.

Hodnocení poroty

Pečlivě zpracovaný návrh úzce navazuje na rostlou městskou strukturu a nabízí jasné zacelení urbánní zástavby. Rozhodnutí o vložení dalších dvou příčných ulic do území zde ale vede k vytvoření příliš zahuštěných a rozdrobených bloků s nejasným využitím prostor kolem domů. Příliš malé měřítko jednotlivých objemů shledává porota zejména z hlediska ekonomické udržitelnosti jako nepřesvědčivé. Řešení zahuštěné bytové zástavby je podmíněno návrhem parkovacího domu, který je pro město Hronov nerealistickým řešením které neodpovídá charakterovému využití území. Porota v návrhu velice oceňuje dobře zvládnutou práci s veřejným prostorem navazující na současnou síť veřejných prostranství a vytvářející rozmanitou mozaiku prostor, která podporuje a rozvíjí kvalitu důležitých míst. Pozitivně porota hodnotí propracovanost krajinářského řešení a návrh znovuobjevení mlýnského náhonu, které se však pro město jeví příliš nákladně.

Předchozí Další
Mimořádná odměna
  • Autor Építész Stúdió
  • Team Zsolt Felix, Tamas Abraham, Luca Mudry, Mate Palfy, Sandor Palfy, Anna Dresch, Agnes Toth
  • Budapešť, Maďarsko
Anotace

Město Hronov hledá základy, na kterých by ve spolupráci se svými obyvateli mohlo stavět jejich budoucnost. Pevné základy lze vybudovat poznáním historie a hodnot města, čímž se zároveň vytvoří i posílí identita jeho obyvatel. Urbanistická soutěž na Freiwaldovo náměstí a její očekávaný výsledek je skvělou příležitostí a úžasnou šancí, jak toho dosáhnout.

Hodnocení poroty

Návrh prezentuje jasný koncepční přístup tří kompozičních prvků, které se skládají z městského bloku, formálně výrazného objektu domova seniorů a přírodě blízkého nábřeží. Jednotlivé prvky však zůstávají izolované a nevytvářejí čitelný městský prostor. Porota oceňuje, že se návrh zaměřuje na makroměřítko i mikroměřítko jednotlivých míst, nedochází zde ale k čitelnému propojení řešeného území s městem a místo zacelení je prostor ještě více fragmentován. Zvolený tvar domova pro seniory v kontextu města působí nevhodně a s ohledem na požadovanou náplň a kapacitu jej porota shledává nepřesvědčivým. Husova ulice nenachází v otevřené struktuře zástavby adekvátní pokračování. Z krajinářského hlediska porota velice oceňuje návrh dešťové zahrady s přesvědčivým ekologickým potenciálem. Struktura krajinářské části nábřeží je detailně propracovaná, její charakter však neodpovídá lokálnímu kontextu. Řešení městského bloku s bodovou zástavbou porota z prostorového hlediska hodnotí kladně. Problematicky ale vnímá nejasné vymezení veřejných a soukromých prostor v rámci území, včetně prostoru kolem domova seniorů.

Předchozí Další