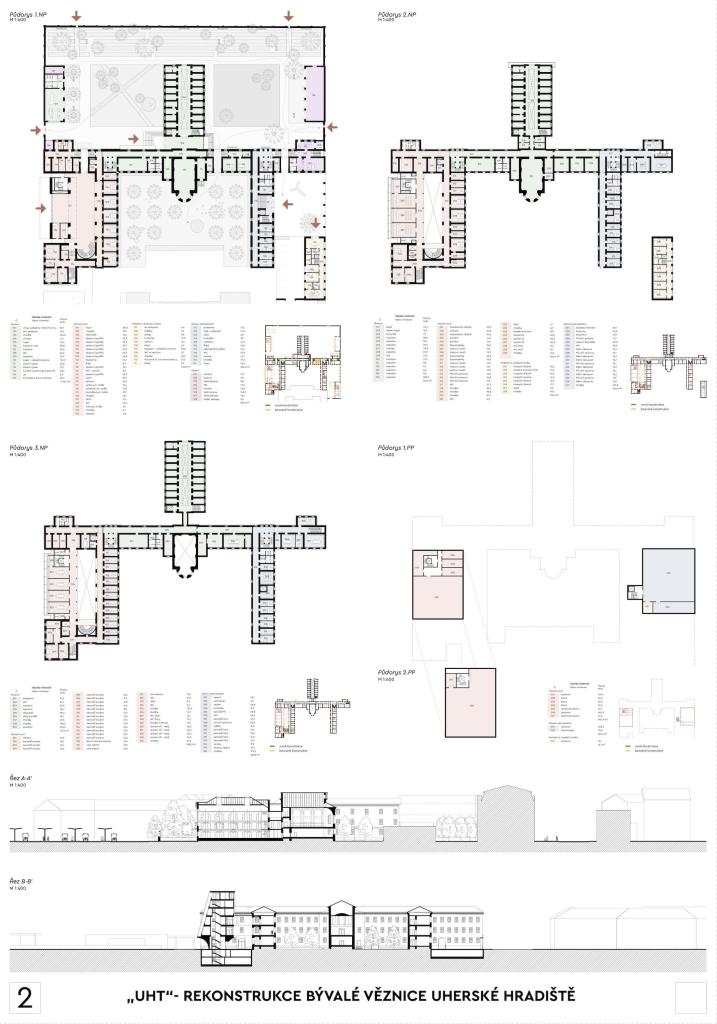
Rekonstrukce bývalé věznice v Uherském Hradišti

1.cena
  • Autor ov architekti
  • Team Jiří Opočenský, Štěpán Valouch, Ondřej Králík, Autor krajinářského řešení: Jan Sulzer, Spoluautoři: Viktor Žák, Anna Blažková, Kateryna Bondarenko
  • Praha
Anotace

Areál bývalého soudu a věznice nese vzpomínky na totalitní 50. léta a utrpení vězňů. Připravovaná obnova přináší příležitost nově interpretovat význam tohoto místa. Vytvořit novou identitu celého objektu a stát se moderní demokratickou institucí s historickou pamětí. Navrženou proměnu reprezentuje dostavba vycházející z historické kompozice stavby a dvě spisovny, které celou kompozici doplňují do jednoho harmonického celku. Přízemní prosklená přístavba budovu symbolicky otevírá okolí. Areál spoluutváří pět dvorů, každý určen k jinému účelu a funkci. Dva čelní dvory – justiční a muzejní jsou otevřené veřejnosti. Vnitřní dvůr je určen kontemplaci, západní probační službě a východní chráněnému služebnímu vstupu pro justici.

Hodnocení poroty

Koncept pěti dvorů je čitelný, funkční a důsledně dotažen. Návrh celkově naplňuje představy o moderní instituci s důrazem na přívětivou komunikaci s občanem. Kapacitní řešení je realistické a dává uživatelům jistotu komfortu a dalšího rozvoje oproti podmínkám, ve kterých dnes fungují. Celkové architektonické řešení, použité materiály i detail veřejného prostoru jsou kultivované, úměrné danému provozu a jsou citlivé k památkově chráněné budově. Dostavby spisoven jsou sice monumentální, jejich náplň však autorům dovoluje užití abstraktní, minimalistické formy, která je ve vztahu k historické budově, akceptovatelná. Přísná symetričnost návrhu ctí původní koncept areálu věznice a nepouští se do kompozičních spekulací. Je otázkou, jestli vstupní prostory soudu a muzea mají být takto přísně identické a podřízené diktátu klasicizující symetrie. Řešení pietního dvora je citlivé, a přestože je schematické, dává uspokojivou představu o kontemplativním charakteru a správně nastaveném přístupu pro další dopracování. Za nevýhodu zvoleného řešení (představený foyer muzea) lze považovat upozadění pietního dvora, které nenabízí jeho přímé propojení mezi muzejním dvorem. Porota zejména oceňuje kvalitně nastavené, životaschopné provozní schéma, u kterého se dá předpokládat možná adaptabilita (ta bude muset být mimo jiné promítnuta do stavebního řešení). Velkým přínosem je jednotné řešení vstupů z dvorní části, které zajistí přirozenou náplň prostranství – dvora, jehož prostupnost by podle názoru poroty měla být nastavena tak, aby byl trvale veřejným a volně dostupným (nikoliv uzavřeným místem s režimem, který z areálu vytvoří uzavřenou a neprostupnou část města.

Předchozí Další
2.cena
  • Autor Múčka Veselý architekti
  • Team Radomír Feňo, Ivona Uherková
  • Brno-Maloměřice
Anotace

Stávající objekt s dílčími, nerušivými dostavbami, nový objekt spisoven do ulice Velehradské. Náhrada ohradní zdi se služebními objekty novou přízemní dostavbou podél perimetru severního dvora. Propojení pietního dvora se severním dvorem chodbou „Cesty zla a slz“.

Hodnocení poroty

Originální koncept pojetí perimetru ohradní stěny přinášející nové funkce městu a dávající silnější potenciál využití dvora. Idea prostupující muzeální osy považuje porota za jednu z nejsilnějších stránek tohoto návrhu. Citlivými dostavbami autoři nechávají vyniknout památkově chráněný monumentální objekt a jemnými gesty ho zlidšťují. Porota považuje za nedostatečné řešené vstupní prostory veřejných částí i některé provozní vazby v objektu. Návrh přináší autorské řešení venkovních částí expozic, které by vhodně sloužily pro účely muzea. Historickou budovu nechává vyznít a chová se k ní citlivě, i když by formou přidávání veřejných funkcí mohl dosáhnout důstojnějších vstupních ploch. Návrh patří k ekonomicky přiměřeným návrhům. Kapacitně podhodnocené dispoziční a provozní řešení instituce soudnictví. Koncept jednacích síní umístěných nad sebou a s nedostatečným předsálím a problematickou bezbariérovou dostupností se zdál být nejslabším místem návrhu. Také společná spisovna pro soud i státní zastupitelství je od soudní budovy provozně oddělena, což bylo budoucím uživatelem vyhodnoceno jako problematické řešení. Veřejně přístupné prostory interiéru, svou snahou vměstnat se do stávajících rozměrů objektu, neodpovídají současným standardům a řada jednacích místností neodpovídá svou velikostí zadání stavebního programu. Není prezentována podoba dostavby spisovny do ul. Velehradské.

Předchozí Další
3.cena
  • Autor re:architekti studio
  • Team Ondřej Synek, Jan Vlach, Jiří Žid, David Pavlišta, Spolupráce: Tereza Psotková, Štěpán Psotka, Alžběta Widholmová, Michaela Hudečková, Martin Kunc, Marie Gelová, Sandra Chlebovská, Spolupráce: Pavla Drbalová / Symbio studio
  • Praha
Anotace

Instituce jsou umístěny v jednotlivých křídlech historického objektu s vlastními vstupy přes západní a východní dvůr. Do muzea se vstupuje severozápadním dvorem. Vstup do okresního soudu je dominantní novotvarová dostavba. Spisovny jsou umístěny v podzemí západního z východního dvora. Severní dvory jsou pojaty jako klidový park s řadou otvorů v severní části ohradní zdi.

Hodnocení poroty

Provozní řešení je bezproblémové, umístění spisoven do podzemí dvorů logické a proveditelné. Kladem návrhu je snaha o jasný dominantní vstup soudu, který areálu vytváří nový jasný vchod na místo toho původního, dnes užívaného školou. Porota zejména u návrhu oceňuje vyváženost řešení, které ve všech ohledech plní požadavky zadání, ve velké míře zachovává památkově chráněnou podobu stavby. Slabinou návrhu tak byla především nepřesvědčivost architektonického výrazu hlavního vstupu. Kombinace šikmé stěny v kontrastu se zaobleným vstupem je k historické budově tvarově těžká.

Předchozí Další
Odměna
  • Autor Radka Kurčíková
  • Team Radka Kurčíková, Spolupráce: Martina Gregorová, Lujza Lehocká
  • Ratboř
Anotace

Konceptem návrhu jsou přízemní dostavby veřejných částí a jednacích místností pro soud zastupitelství a muzeum, které jsou umístěné v severních dvorech. Vlastní historická stavba není rekonstrukcí zasažena. Vstupy využívají všech stran ohradní stěny. Ze západní strany je soud přístupný z ulice Velehradské, v prostřední části je část muzea přístupná ze severu a z východní části, z ulice Politických vězňů, se vstupuje do státního zastupitelství. Spisovny obou institucí jsou umístěny do podzemí.

Hodnocení poroty

Silný koncept přízemních dostaveb představuje jasnou adici ve dvorních částech. Porota však neshledala přesvědčivou kompozici jejich členění, které fragmentuje severní dvůr do několika menších átrií. Tato atria nejsou vzájemně propojena a potírají monumentálnost historického nádvoří. Místo toho jsou návštěvníkům poskytnuty průhledy do úzkých zahrad, kde jistá nepřehlednost je zesílena záměrem husté, neprůchodné zeleně. Porota také vytkla návrhu horší čitelnost prezentace.

Předchozí Další
Odměna
  • Autor FVA
  • Bratislava
Anotace

Návrh kompletně umisťuje veškeré potřebné provozy, které jsou nad rámec historického objektu, do podzemního podlaží. V tomto sníženém podlaží vytváří pro všechny instituce a muzeum jeden společný, velkorysý vstup. Služební zásobování a vstupy ponechává návrh z úrovně 1 np. Prosvětlení podzemních prostor je řešeno prosvětlujícími spárami, které vytváří ve dvorech výrazný kompoziční prvek. Hlavní vstup do dvora je orientován ze strany ul. Politických vězňů. Ze strany severní a východní jsou v ohradní zdi další otvory zpřístupňující nádvoří.

Hodnocení poroty

Porota oceňuje záměr po zachování původního výrazu budovy bez nutnosti dostavby. Autoři však nedostatečně prezentují způsob využití takto získaných prostranství a tím i oprávněnost finančně a technicky náročného řešení. Problematicky porota vnímá umístění prosvětlujících spár kanceláří v pietním dvoře. Porota dále upozorňuje na komplikovanou proveditelnost technického řešení založeného na těsném celo-obvodového obestavění křídla kaple, cel samotek a širokého poddolování středového křídla historického objektu.

Předchozí Další
Odměna
  • Autor Michal Kutálek a Arch. Design
  • Uherské Hradiště
Anotace

Jednotlivé bloky historické stavby jsou doplněny předsazenými přístavky, do kterých jsou umístěny provozní části jednotlivých institucí. Podle představy autorů by přístavky měly být polotransparentní abstraktní extrudovanou mříží, která má být jednotícím architektonickým prvkem. Jednací síně soudu jsou umístěny do podzemí v části pietního dvora a jsou prosvětleny rastrem světlíků. Tyto světlíky jsou ozvláštněny skleněnými stélami, jako připomínky popravených. Severozápadní dvůr je zamýšlen pro kulturní akce a exteriérovou expozici muzea. Za tímto účelem je zde navržen kolejový systém posuvných lavic a element lávky svobody. Objekt samotek má být zachován v současném syrovém stavu neomítnutých cihel a rozrušených zbytků omítky. Návrh se zabývá úpravou náměstí v ul. Politických vězňů, ze které je také nájezd do podzemní garáže.

Hodnocení poroty

Porota oceňuje čitelné a funkční provozní schéma a snahu autorů o vnesení kulturní funkce do severního dvora. Logika analytického přístupu rekonstrukce předsazením nových, kontrastních objektů je principiálně správná, porota však považuje za problematické vlastní architektonické řešení. Místo deklarované polotransparentnosti, působí spíše těžce. Rovněž proporce přístavby na východní straně je rozsahu, kdy východní křídlo téměř celé zastavuje. Fasády, i přes snahu o jednotný princip, ve výsledku působí nekonzistentně a to zejména u monumentálního vstupu z ulice Politických vězňů. Porota nepovažuje za vhodnou symboliku „světlíků svobody“, které v pietním dvoře přivádějí světlo do soudních síní. Velmi problematicky je hodnocen zájezd do garáží rampou v místě důležitého propojení ulice Politických vězňů s dnešním autobusovým nádražím.

Předchozí Další
Odměna
  • Autor PEER COLLECTIVE
  • Brno
Anotace

Historické stavbě je přidána nová vrstva komunikačního uzle, která propojuje všechny umisťované provozy. Vstup do muzea je severním dvorem. Soud, zastupitelství a probační služba má společný vstup z jihu a západním dvorem. Na východě se nachází společný služební vstup. Komunikační uzel je tvaru L, u vstupu muzea doplněný diagonálním vestibulem. Spisovny jsou umístěny v podzemí pod pietním dvorem a pod přístavbou v západním dvoře. V dokumentaci však chybí půdorys 1PP, který by provozní řešení a jejich funkcionalitu doložil. Severní dvory jsou navrhovány jako klidový park přístupný novými otvory po obvodu ohradní zdi.

Hodnocení poroty

Architektonické řešení je kultivované, použité materiály vhodně doplňují architekturu historické stavby, koncept propojujícího uzlu je čitelný a velkorysý. Jedná se o jediný návrh, který řeší provoz pouze s jedním provozním vstupem. Čistotu konceptu však snižuje přízemní diagonála a čelní dostavba muzejního vstupu. Autoři toto zdůvodňují novou vrstvou, odkazující na dříve zde přítomný teror, který zde „nepatří“. Za hlavní problém však porota považuje zakrytí fasády dvorního objektu školy propojující chodbou. Řešení severních dvoru je schematické a nedává představu o jejich využití jako městského parku. To se týká především severovýchodního dvoru, kterým je přístup pouze do pietního nádvoří. Také malé otvory v obvodové zdi neposkytují dostatečnou orientační funkci, že za zdí se nachází rozsáhlý městský park. Otázky udržitelnosti nejsou v návrhu doloženy.

Předchozí Další
Odměna
  • Autor DKarchitekti
  • Team David Kudla, Zdeněk Navrátil, Xeniya Pulkrab, Lucie Klepárníková, Jana Raticová, Petr Ciprys, MISS3
  • Brno
Anotace

Umisťuje instituce do jednotlivých křídel historické stavby. Plošný deficit provozních místností je vyřešen přízemními přístavbami za stěnami východního a západního dvoru. Zde jsou umístěny foyer, které navazují na vstupy pro veřejnost ze severu. Parkování je řešeno kapacitní, podzemní. Spisovny pro soud i zastupitelství je v podzemním objektu v severozápadním dvoře. Veřejné vnější prostory severního dvoru a pietního nádvoří jsou řešeny na základě podrobné analýzy historických stop, které se různým způsobem propisují do ztvárnění povrchů. Objekt cel samotek je nově napojen na historickou stavbu subtilnějším spojovacím krčkem v přízemí s rozšířeným jako foyer muzea. Soutěžící předložil dodatečný panel, který po diskuzi nebyl porotě předložen ke zhlédnutí.

Hodnocení poroty

Navržené provozní schéma je funkční. Dostavby skryté za zdi bočních nádvoří jsou nerušivé a logicky rozvíjejí plochy vázané na vstupy. Také orientace vstupů ze severního nádvoří je hodnocena pozitivně a zajišťuje prostranství životaschopnou náplň. Problematickým se jeví umístění spisovny soudu mimo jeho provoz, na opačnou stranu areálu. Bylo by však řešitelné reorganizací rozmístění podzemních staveb a garáží. Porota nevyhodnotila pozitivně přístup k řešení parteru, které spoléhá na abstrakci přepisu různých historických stop do druhu povrchů a grafických značek. Bez hledání opodstatněnosti formy odpovídající nové funkci, se jeví takový přístup jako formální a neospravedlňuje například dostatečně potřebu rozsáhlé zadlážděné plochy severovýchodního nádvoří. Kompozice záhonků před vstupem do muzea a zejména „okrasná“ podoba členění pietního nádvoří je vzdálená názoru poroty o představě kontemplativního prostředí. Autoři zde vychází z návratu do dohledané původní podoby nádvoří a pozdější vrstvy (hřiště) naznačují značkou v povrchu. To je v rozporu se záměrem vězeňského prostředí z padesátých let a tragické události jsou na nádvoří zasazeny do jiných „kulis“, než v jakých se odehrávaly. Porota kladně hodnotí velkou míru propracovanosti návrhu.

Předchozí Další
Odměna
  • Autor Ondřej Pecháček, Matouš Pluhař, Jaromír Pecháček
  • Uherské Hradiště
Anotace

Návrh nadstavuje provozní objekty severních nádvoří a dostavuje nové východní křídlo soudu. Severní ohradní stěna je fragmentována, nádvoří pojímá jako sochařské a muzejní. Pietní dvůr vysypán černým štěrkem a symbolickými „krátery“. Spisovny jsou umístěny v podzemí pod východním a západním dvorem. Všechny dvory jsou propojeny v severojižním směru průchody. Návrh se podrobně zabývá udržitelností.

Hodnocení poroty

Návrh je myšlenkově podnětný, architektonicky kvalitní. Perforace severní obvodové stěny otevírá potenciál návaznosti na území dnešního autobusového nádraží, které se v těchto místech předpokládá redukovat. Ze všech návrhu tak nejvíce propojuje dvůr s okolím, což v tomto případě muže zajistit pojetí dvora jako veřejného, trvale přístupného parku. Jako zásadní problém shledává porota provoz soudu, kde nový průjezd kříží přízemní část a vyžaduje více vstupů. S ohledem na potřebu bezpečnostně zajištěných vrátnic je takové řešení nefunkční. Rovněž východní křídlo vytváří úzkou ulici, jejíž smysluplnost je právě tímto průjezdem podmíněna. Dispoziční řešení soudní přístavby není uspokojivě řešeno, společné prostory kontaktu s veřejností jsou malé, celkové řešení stísněné. Porota vyzdvihuje kvalitně zpracovaný návrh a dobrou čitelnost prezentace.

Předchozí Další