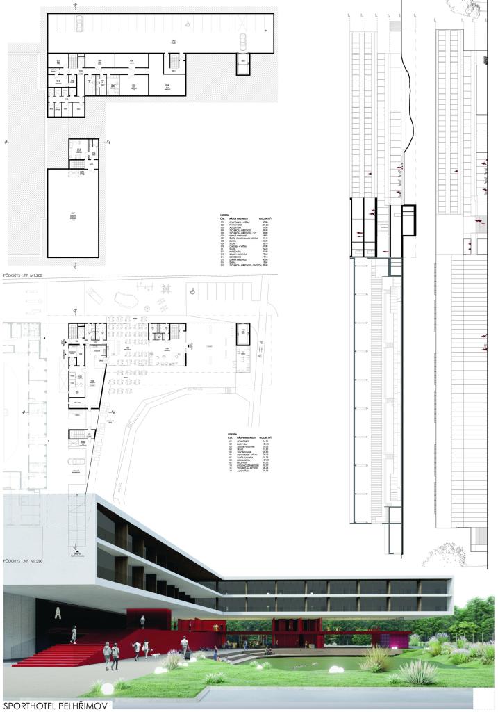
Sporthotel Pelhřimov

1. cena
  • Autor Boele
  • Team Pavel Fajfr, Petr Šuma, Vitudanish Dara
  • Praha
Anotace

Revitalizovaný stadion, i navržený sport-hotel, spolu s přilehlými veřejnými prostory vytváří nové pulzující srdce Pelhřimovského sportovního areálu. Hmota propojených budov člení a iniciuje veřejné prostory v okolí – ze severu ozeleněné rušné parkoviště pro návštěvníky, ze západu kapacitní schodiště s rozptylovými prostory, a z jihu klidnější předprostor hotelu s aktivitami pro děti. Obě budovy mají společnou novou identitu, přesto jsou to zřetelně dvě budovy se svými specifiky. Stadion i sport-hotel pozitivně působí na své bezprostřední okolí a přistupujeme k nim jako k iniciačnímu projektu zatraktivnění areálu pro občany města a další návštěvníky.

Hodnocení poroty

Návrh porotu přesvědčil kvalitní architekturou, svým čistým a silným výrazem. Budova dobře komunikuje se stadionem. Návrh naplňuje i požadavek vyhovět i jiné klientele, než čistě sportovní. Linie, kterou soutěžící uvažují, nejlépe sleduje a naplňuje kritéria soutěže. Kladně je hodnoceno dopravní řešení a parkování. Porota ocenila použití prefabrikovaných částí návrhu. Návrh neřeší pouze obálku, ale komplexně i novou přístavbu, čímž přináší i nové náměty. Celkově porota hodnotí projekt jako kultivovaný a vhodný danému záměru projektu. Porota uvažuje, zda by nebylo k zamyšlení fasádu zjednodušit. Porota doporučuje zadavateli jednat s autory návrhu v rámci upřesnění zadání o zjednodušení fasády s ohledem na optimalizaci pořizovacích i provozních nákladů.

Předchozí Další
2. cena
  • Autor studentý architekti
  • Team Ján Studený, Peter Stec
  • Bratislava, Slovakia
Anotace

Koncept architektonického řešení Sporthotelu a opláštění ledové plochy je utilitárním objektem, který správně rozděluje požadovaný program do jednotlivých dispozičních celků a následně je spojuje do kompaktního objemu. Jednoduchá kompozice obou objemů zajišťuje soudržnost výrazu v exteriéru a přímé vazby v interiéru.

Hodnocení poroty

Porota se shodla, že se jedná o pragmatický návrh, který nabízí jasnou koncepci. Kvalitou návrhu jsou jeho nízké náklady a malá plocha. Oceňována je strohost návrhu, ale estetická stránka návrhu, ačkoli je velmi čistá, porotu nepřesvědčila, že hovoří jazykem vhodným pro danou budovu. Dvě původní hmoty jsou stále přiznány, což je porotě sympatické. Porota si není jistá, zda návrh záměrně zahlcuje okolní prostory a vytváří prostředí podobné průmyslové zóně, nebo zda je návrh v tomto ohledu koncepční. Návrh je rozumný a provozně přiměřený.

Předchozí Další
3. cena
  • Autor DESTYL
  • Team Martin Poledníček, Jakub Sedlák, Zuzana Butelová, Eva Laceková, Stanislav Janíček, Ester Vaňová
  • Praha
Anotace

Cílem návrhu bylo stávající zimní stadión rozzářit, vytvořit z něj důstojný středobod sportovního areálu, transformovat ho na objekt, který přitáhne a pobídne k návštěvě nejen fanoušky místního hokejového klubu. Proměnit ho na budovu, kterou bude mít chuť navštívit a náhodný kolemjdoucí. Protipólem extravagantního hokejového svatostánku je o něco konzervativnější sporthotel. Ten by měl naopak působit kompaktně, u svých hostů vyvolávat pocit bezpečí. Dům, který nabídne pěkné výhledy, ale zároveň ochrání soukromí hostů.

Hodnocení poroty

Porota ocenila kladně přístup k energetickému řešení budovy a slušný kultivovaný výraz budovy. Objem budovy je velkorysý. Budova evokuje charakter městského domu i volbou materiálového zpracování. Míra rozpracovanosti je odpovídající. Materiálové řešení porota shledává za velkorysé, bohužel až příliš. Objem budovy evokuje charakter kongresového hotelu a návrhu by prospělo ubrat minimálně o sál. Použití fotovoltaiky považuje porota za nelogické a materiálové řešení za nákladné

Předchozí Další
mimořádná odměna
  • Autor mackovič architecture
  • Team Dominika Čižmářová, Max Kušiak, Mikuláš Molitor
  • Praha
Anotace

KRÁSNÁ HMOTA ZIMNÍHO STADIONU BUDE NOVÝM PLÁŠTĚM ZDŮRAZNĚNA. S NAVRŽENOU HMOTOU SPORTHOTELU BUDE TVOŘIT HARMONICKÝ CELEK. HALA BUDE PŮSOBIT JAKO SVĚTLÁ KOSTKA LEDU ČI LEDOVÁ KRA – BUDE ODRÁŽET NECHTĚNÉ PAPRSKY SLUNCE, VŠE PODSTATNÉ NABÍDNE UVNITŘ. HOTEL OPROTI TOMU BUDE PŮSOBIT JAKO KLIDNÝ PŘÍSTAV, ZÁZEMÍ PRO SPORTOVCE, FIRMY, RODIČE S DĚTMI, I PRO VÝJIMEČNÉ GASTRONOMICKÉ ZÁŽITKY.

Hodnocení poroty

Porota se rozhodla udělit tomuto návrhu mimořádnou odměnu, protože chtěla ocenit zvolené řešení oddělení hotelového objektu od stadionu, které nabízí praktické řešení zásobování a zároveň vede k přiblížení hotelu vodní nádrži. Bohužel, za cenu zvětšení plochy obálky budovy.

Předchozí Další
mimořádná odměna
  • Autor FVA
  • Team Martin Vanko, Ľubomír Fuňa, Tomáš Martiš, Dušan Gerbiš, Henrita Horváthová, Stanislava Madara
  • Bratislava, Slovensko
Anotace

Koncept návrhu športhotela v Pelhřimove je postavený na kompaktnom riešení prepojenia objektu existujúceho hokejového štadióna s novou hmotou športhotelu tak aby spoločne tvorili jeden harmonický celok. Návrhom a kompozíciou objektu riešime prepojenie funkcií prevádzky hotela, štadiónu a okolitých športových funkcií. Reflexiou v návrhu je umiestnenie „pobytovej plochy“ v úrovni 2.NP navrhovaného hotelu. Toto riešenie vytvára nový nástup s rozptylovou plochou pre hokejový štadión a tiež vonkajšie pobytové plochy pre funkciu hotela – multifunkčnú sálu a detskú herňu, všetky s vizuálnym kontaktom s jazerom a riekou.

Hodnocení poroty

Porota se rozhodla udělit tomuto návrhu mimořádnou odměnu za zapojení cyklistické infrastruktury do návrhu skrze cyklochodník, který se napojuje na cyklotrasu kolem řeky Bělá.

Předchozí Další
mimořádná odměna
  • Autor JAKUB KLASKA
  • Londýn, Velká Británie
Anotace

Rekultivace území spočívá ve strategické integraci objemu nově vznikajícího hotelu a objektu zimního stadion stadionu v jednu celistvou hmotu, která svým měřítkem adekvátně reaguje na okolní sportovní plochy a celkové proporce sportovního areálu a rozvíjí existující vazby v okolí. Integrace hmoty hotelu do obálky a objemu zimního stadionu rektifikuje stávající objem do kompaktní jasně čitelné hmoty vhodných proporcí s rytmem fasádních prvků reagujících na vnitřní konstrukční a prostorovou logiku hotelu se stadionem. Konstrukčně modulový návrh se soustředí na integraci všech svých prostor do organismu, který důsledně včleňuje a využívá všechny své části ke vzniku objektu s jasně čitelnou strukturou a kompozičním řádem.

Hodnocení poroty

Porota se rozhodla udělit tomuto návrhu mimořádnou odměnu, za prověření cesty sjednocení fasád obou objektů do jednoho celku.

Předchozí Další
mimořádná odměna
  • Autor OK PLAN ARCHITECTS
  • Team František Čekal, Martina Váňová
  • Humpolec
Anotace

Nový koncept řešení spojuje funkčně i výrazově hmoty zimního stadionu a Sporthotelu v jeden celek. Nový ochoz spíná a propojuje celou úroveň 2np stadionu a hotelu. Nesourodá hmota původní střechy a fasád zimního stadionu je doplněna novou vrstvou ocelové struktury, která bude porůstat popínavou zelení. Na střechu jsou doplněny fotovoltaické panely. Z platformy 1np hotelu vyrůstají křídla hotelových pokojů ve 2- 4np s předsazenými stínícími lemy, nesenými strukturou ocelových tyčí, vizuálně navazující na vzhled pláště stadionu.

Hodnocení poroty

Porota se rozhodla udělit tomuto návrhu mimořádnou odměnu, za navržené adaptační opatření fasády.

Předchozí Další