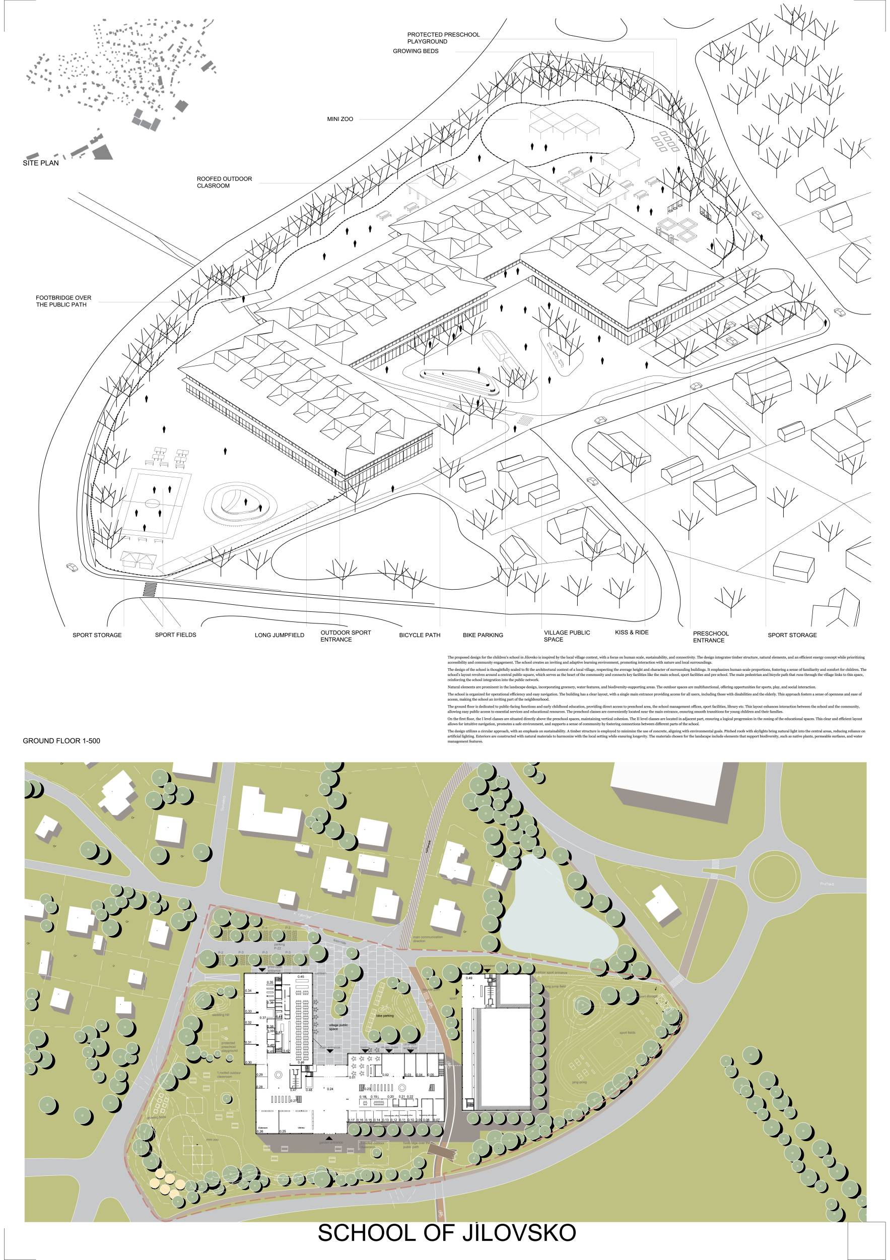
DSO Škola Jílovska

Návrh č. 1

Aoc Architekti / Ondřej Císler, Josef Choc, Filip Rašek, Barbora Lopraisová, Jonáš Mikšovský, Natálie Kristýnková, Michail Nužnyj, Mikoláš Vavřín / Praha
Návrh č. 2

2.cena

Apropos Architects / Michal Gabaš, Laura Lukáčová, Miroslav Slezák, Tomáš Beránek, Eva Gabaš Rosenová / Chrudim
Návrh č. 3

Settanta7 / Elena Rionda, spolupráce inženýr Massimiliano Milan (Milan Ingegneria S.p.A.) / Turín, Itálie
Návrh č. 4

JOJKO NAWROCKI ARCHITEKCI / Marcin Jojko, Bartłomiej Nawrocki / Katovice, Polsko
Návrh č. 5

mimořádná odměna

MACH / Marc Subirana Ribera, Laia Gelonch Llongarriu, spolupráce Victoria Cirillo, Magdalena Mannise / Barcelona, Španělsko
Návrh č. 6

Tomáš Gelien / Tomáš Gelien, spolupráce Jasmín Al-Hussein, Tomáš Korch, Petr Matiasovits / Praha
Návrh č. 7

Alberto Cumerlato / Benátky, Itálie
Návrh č. 8

3.cena

BY architects / Markéta Zdebská, Marek Žáček, Tomáš Vojtíšek, Max Mohl, Miroslav Faist, Alexandra Andreea Bajan, Laure Philippe, Josef Filip (doprava) / Praha
Návrh č. 9

RECS ARCHITECTS SOCIETA’ TRA PROFESSIONISTI / Pier Maria Giordani, Alessandro Santoro, Marco Conte, Mattia Leoni, Atousa Ghorbani Tabrizi / Parma, Itálie
Návrh č. 10

1.cena

Studio Perspektiv / Ján Antal, Martin Stára, Martin Křivánek, Silvia Snopková, Ľuba Ondrejkovičová, Dominika Demlová / Praha
Návrh č. 11

Pelletier de Fontenay / Hubert Pelletier, Yves de Fontenay, Yann Gay-Crosier, Anik Mandalian, Alexis Deleporte, Julien Rozon / Montréal, Kanada
Návrh č. 12

mimořádná odměna

Malý Chmel / Zdeněk Chmel, Miroslav Malý, Gabriela Sládečková, Miroslav Chmel, Martin Ciglbauer, Jitka Vančurová, ZAN studio – vizualizace, Landa Ruhmkorf – konzultace krajinářského řešení / České Budějovice
Návrh č. 13

Office OU / Uros Novakovic, Nicolas Koff, Hugues Azambre, Sebastian Bartnicki / Toronto, Kanada
Návrh č. 14

Építész Stúdió / Tamás Fialovszky, Máté Pálfy, Hunor Szántó, Barnabás Karakas / Budapešť, Maďarsko