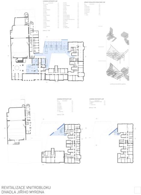
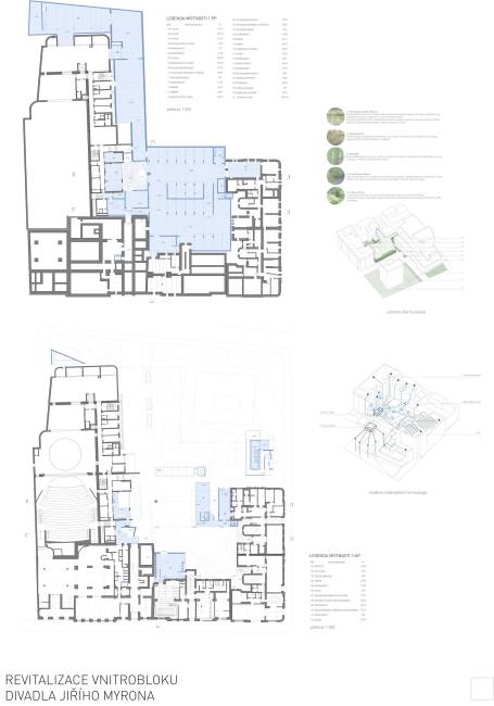
Revitalizace vnitrobloku Divadla Jiřího Myrona

Návrh č. 1

1.cena

Szymon Rozwałka, Ada Rypl-Žabčíková, Jaroslav Sedlák / Szymon Rozwałka, Ada Rypl-Žabčíková, Jaroslav Sedlák, Šimon Doubrava, Kazuhiro Okamoto, Ludmila Jankovichová, Tomáš Müller, Dušan Navrátil, Rostislav Rypl, Stanislav Šimoníček, Šarka Svobodová, zahradní architektura: Mirka Svorová a Jana Zuntychová / Brno
Návrh č. 2

3.cena

žalský architekti / Tomáš Nováček, Matěj Hoffman, Lenka Levíčková, Jakub Cibula, Adam Kocík, Valérie Filipová, Aneta Voženílková, Jan Žalský / Praha
Návrh č. 3

Finalista

MIAS ARQUITECTURA SLP / Barcelona, Španělsko
Návrh č. 4

2.cena

PLURAL / Bratislava, Slovensko
Návrh č. 5

Finalista

Laubová – Sosna / Vidonín, Praha