DÍLO – Pocta Jiřině Haukové a Jindřichu Chalupeckému

1. cena
  • Autor Vojtěch Tecl, Tereza Brussmannová, Savka Marenić, Adam Šustek
  • Team Jakub Rajnoch
  • Chotěboř
Anotace

Pocta Jiřině Haukové a Jindřichu Chalupeckému je syntézou obou - “spolu”. Promlouvá pomocí nového hybridního billboardu. S využitím existující technologie, která dokáže skrz texty obou autorů vytvářet texty nové. Propojením těchto dvou osobností se rodí nekonečné variace inteligentního generovaného textu. Vymýšlí ho systém neuronové sítě, vyučovaný všemy dostupnými texty a archiváliemi, které po sobě oba autoři zanechali. Vzniká sloučení dvou přístupů k tvorbě psaného textu a vytváří tak novou nesmrtelnou poezii a myšlenky, které se stále aktualizují.

Hodnocení poroty

Zajímavý projekt „hybridního autointelektuálního billboardu“ – technologicky, formálně i obsahově propracovaný. Automatické generování nových textů odpovídá řadě aktuálních postupů tematizujících limity a možnosti umělé inteligence a automatizace (o které Chalupecký také s jistou obavou psal ve svém kanonickém textu Svět, v němž žijeme). Zajímavou součástí díla je vznik archivu generovaných textů. Projekt zajímavě pracuje s odkazem obou autorů. Užívá jednoduchého displeje, který je běžný pro veřejný prostor typicky však spíše pro nedaleké nádraží a ne pro park. Jakýsi živý archiv založený na generaci nových textů pomocí systému neuronové sítě vztahuje dílo obou autorů k současnosti. Zároveň je poutavým prvkem pro uživatele místa a velmi prostým způsobem navozuje také mírně nepatřičnou, nepatetickou „retro“ atmosféru jakéhosi drive-in kina.

2. cena
  • Autor Radek Talaš
  • Zlín
Anotace

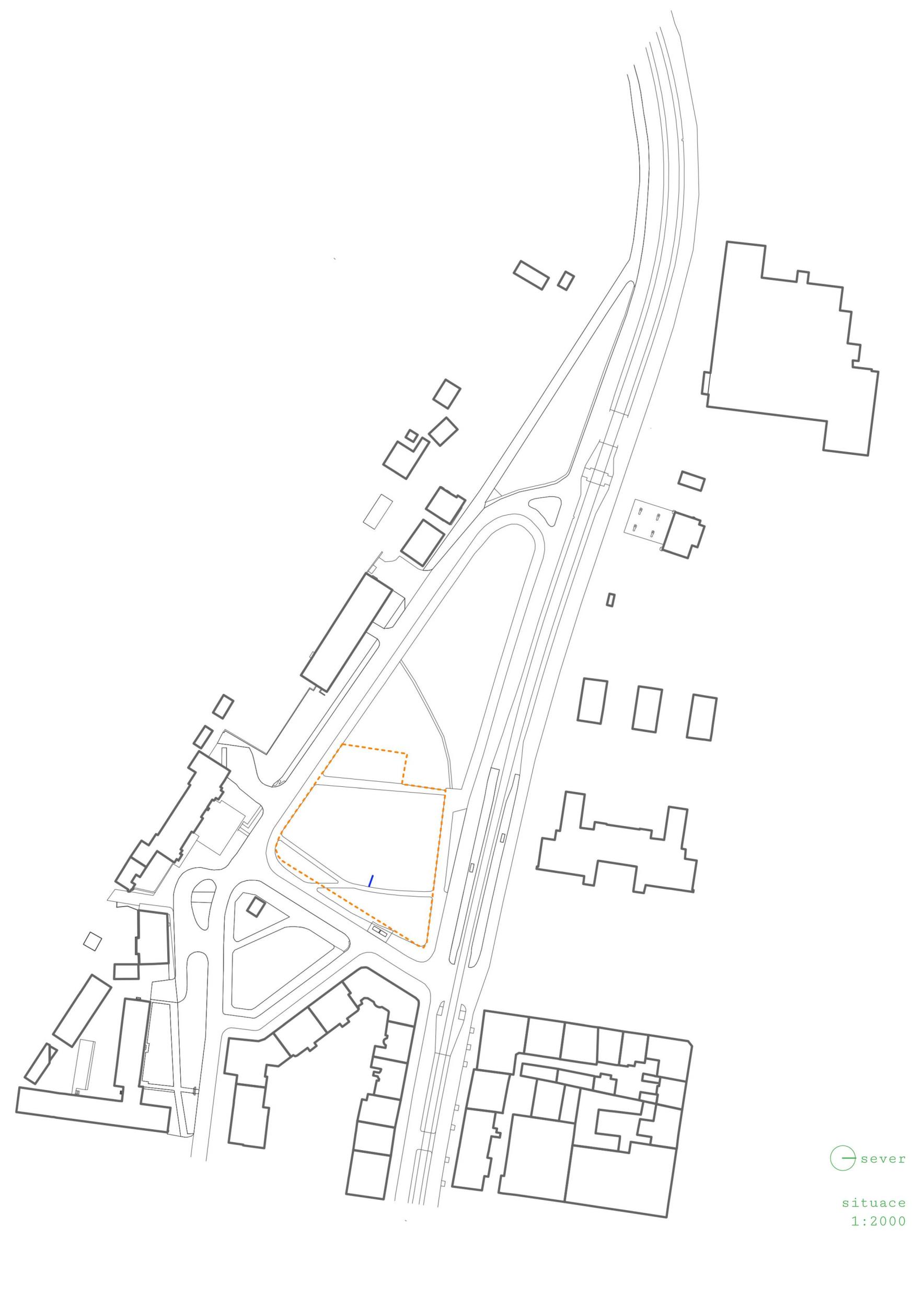
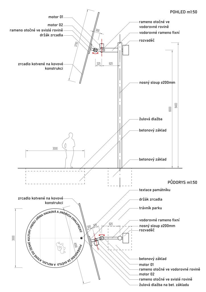
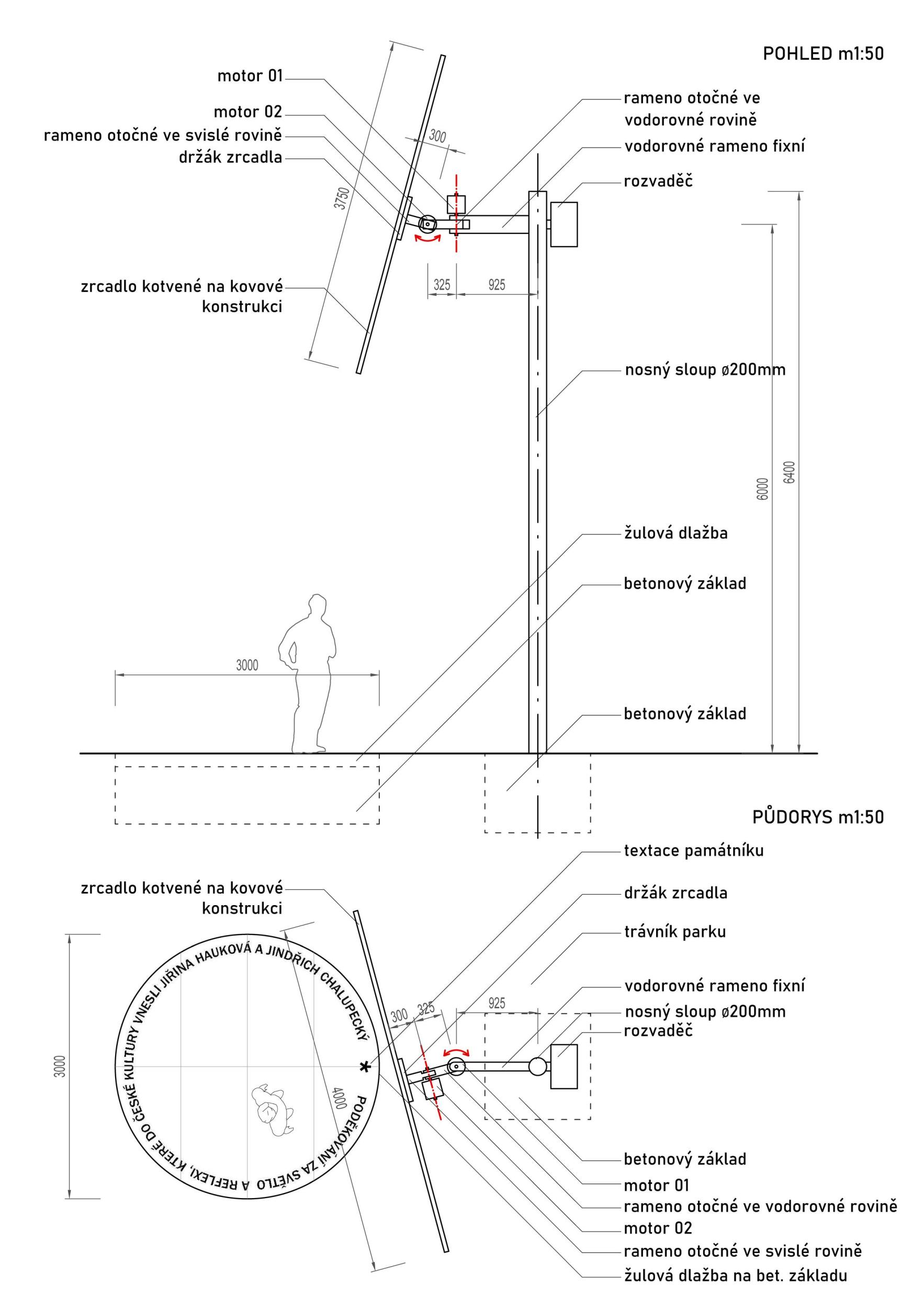
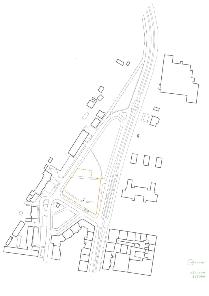
Předmětem návrhu je památník dvěma osobnostem české kultury, kteří ve Vršovicích prožili převážnou část svého společného života. Jindřich Chalupecký a jeho jasné, nekompromisní, precizní a do jádra jdoucí úvahy a reflexe nejen nad českou kulturní scénou a Jiřina Hauková, se svými citlivými, hlubokými a pronikavými básněmi. Dvě osobnosti, které kromě společného života spojovala literární tvorba a které svým dílem zanechali naší společnosti výrazný odkaz. Památník se snaží vzdát díky za tento výrazný odkaz a zároveň v jeho duchu vytrhnout diváka ze všednosti každodenního života a nechat jej na tuto všednost nahlédnout novým pohledem.

Hodnocení poroty

Hravý interaktivní návrh, který vtahuje do hry prostředí nádraží. Atraktivní je kinetika objektu a práce s odrazem slunečního světla. Objekt si říká o obyčejnou zvědavost – co to vlastně je, jak to funguje, proč hvězdička a proč vrhá "prasátko" na nádražní fasádu. Zároveň u něj ovšem chybí jasnější reference k Haukové a Chalupeckému – jasnější vysvětlení volby daného tvaru a zasazení do kontextu. Textový odkaz na zemi je v tomto ohledu prvoplánový.

Předchozí Další
3. cena
  • Autor Studio COSMO
  • Team Jiří Kabelka, Tereza Kabelková, Marie Kubátová, Petr Moschner
  • Praha
Anotace

Kruh rámující běžnou realitu parku. Hrající si děti, zpěv ptáků, kus cesty, lavička, lampa. Pódium pro každodenní drama člověka a skutečnosti. Svěží stín stromu ve vyprahlém létě, nahé větvoví v zimě. Myšlenky Chalupeckého a Haukové jemně vepsány do hrany intervence i do prostoru parku.

Hodnocení poroty

Vložení přírodního piedestalu, který jakoby mimoděk zdůrazňuje význam jinak obyčejného místa je na hranici banálnosti, přesto je koncept zvednutí úrovně parku o několik decimetrů v souvislosti s Chalupeckého i Haukové potřebou zviditelňování každodenní skutečnosti velice atraktivní. Velmi sympatický návrh akcentující samotné místo a život v něm jednoduchým, a přesto poetickým i promyšleným způsobem upozorňuje na každodennost. Návrh dle názoru poroty v konkurenci soutěže dobře vyhověl zmíněným kritériím stanoveným soutěžními podmínkami.

Předchozí Další