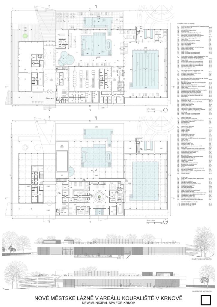
Nové městské lázně v areálu koupaliště v Krnově

1. cena
  • Autor Aoc architekti
  • Team Ondřej Císler, Josef Choc, Filip Rašek, Natálie Kristýnková, Jonáš Mikšovský, Barbora Lopraisová, Emily Hillová, Mikoláš Vavřín (krajina), Klára Kvízová, Matyáš Bartoň (grafický design)
  • Praha
Anotace

Krajinářský, urbanistický a architektonický koncept městských lázní v parku jsme optimalizovali především z hlediska vnitřního provozu — zásadní změnou k lepšímu je bezbariérové řešení vstupu do budovy, šaten i bazénu. Dalším kvalitativním posunem je napojení areálu na kruhový objezd a navýšení kapacity parkoviště. Přicházíme s jedinečným konceptem saunového světa s vysokou mírou intimity a imersivní, uklidňující atmosférou, obohacenou výhledy do meditačních zahrad.

Hodnocení poroty

Návrh uvažuje vícevrstevnatě v měřítku krajiny i v detailu a je jedinečný svým urbanisticky silným konceptem. Krajinářsky jedinečné řešení, prostor „lázeňského parku“ působí uvolněně, přirozeně, příjemně. Ponechává maximum volné plochy pro společný park a sjednocuje areál koupaliště a bazénu, propojení obou částí areálu je synergické, otevírá se na jih po celé délce pozemku. Pozitivní je také dialog s řekou Opavicí. Zde by nemuselo zůstat pouze u řešení jednoho břehu. Umístění nové budovy do severní části vytvořilo zelenou kapsu, která je největším pozitivem návrhu. Dům je provozně přehledný a čitelný. Porota oceňuje umístění bazénových hal k parku a maximální kontakt návštěvníků v rámci areálu. Kompaktnost a lapidárnost řešení zároveň pracují s jemným půdorysným prohnutím, se světlem i s konstrukcí domu. Výraz domu je naopak spíše schematický, a to spolu s řešením západnímu rohu oslabuje celkový koncept. Může chybět pocit lázeňské intimity. Mírnou nedůvěru vzbuzují dřeviny na konstrukcích střechy (jejich velikost ve vztahu k mocnosti pěstebního substrátu).

Předchozí Další
2. cena
  • Autor WMA architekti
  • Team Martin Materna, Vendula Bažová, Adam Weczerek, Zdeněk Strnadel (krajinářské řešení), Jan Homola (konstrukční řešení), Natálie Balková, Adéla Kudlová, Markéta Káňová, Renata Valentová, Janoušek & Havlíček (vizualizace)
  • Opava
Anotace

Urbanistický plán definují obvodové linie, kompoziční kolmice k řece a podélná komunikační osa. Koncept vychází z hmoty kvádru, který uzavírá celý areál z východu, uvnitř vzniká centrální louka, do které se svažují postranní travnaté terasy. Dům stojí na jedné vyvýšené platformě zastřešené masivní deskou. Území je na rozhraní města a krajiny, koncept propojuje obě tyto roviny. Městská vrstva se nasouvá do objektu formou provozní struktury, vrstva krajiny pak objekt překrývá střešní zahradou.

Hodnocení poroty

Návrh vyniká jasným konceptem veliké střechy a areál koupaliště a bazénu je propojen do jednoho celku a orientován k sobě navzájem. Nevýhodou je veliký objem domu zabírající zelenou plochu parku a společná louka je tím výrazně zmenšena. I přesto se však návrhu podařilo krajinářsky zkomponovat harmonicky v širších vztazích i detailu. Jedná se o příjemný promyšlený návrh. Pozitivní je propustný parter s citlivým začleněním stávajících stromů. Velmi pozitivní je úvaha o řešení řeky Opavice, revitalizace je svěží, příjemná, inspirující. Dům-střecha by mohl velmi dobře fungovat, kdyby nechal proniknout zeleň a krajinu z okolí co nejblíže až pod svoji střechu. Řešení střechy jako samostatné krajiny se saunovým světem slibuje chytře řešenou a lákavou lázeňskou intimitu a zároveň by mělo umožnit nechat větší část parku volnou. Provozně přehledný dům má bazény otočeny k severu a západu. Velký bazén na severu je podpořen průhledy do budoucího sadu, ale není výrazněji spojen s areálem. Rovněž chybí přímá vazba mezi vstupní halou a plaveckým bazénem. Naopak z výhodné pozice u vchodu těží poněkud diskutabilně fitness centrum. Porota by ocenila rozmanitější atmosféru interiéru různých provozů.

Předchozí Další
3. cena
  • Autor Studio Perspektiv
  • Team Martin Stára, Ján Antal, Sebastian Sticzay, Tomáš Pavlakovič, Silvia Snopková
  • Praha
Anotace

Město Krnov reprezentuje dvě tváře – zachovalou historickou architekturu a nově vznikající stavby ve veřejném prostoru. Jednou z nich se má stát i areál nových městských lázní. Obyvatelé Krnova i okolních měst, včetně těch polských na podobnou stavbu čekali. Nová sportovně relaxační dominanta města podporuje rozvoj oblasti a stává se atraktivním turistickým cílem pro všechny skupiny obyvatel. Navrhujeme městské lázně rozšířené o sportovně-relaxační část navazující na sportovní infrastrukturu města podél ulice Petrovická. Nově vzniklý areál reaguje na dostavbu letního koupaliště od studia Projektil a současně reflektuje okolní krajinu sousedící s řekou Opavicí. V návrhu jsme kladli důraz na maximální komfort návštěvníků a reprezentativní podobu stavby, která ovlivňuje lokální komunity.

Hodnocení poroty

Porota považuje zahuštění celého řešeného prostoru za velice razantní ve vztahu k letnímu koupališti. Právě parkový prostor koupaliště je považován za dominantní a návrh jej zcela odbourává. Propojení s poříčím řeky Opavice nenabízí využití potenciálu místa. Krajinářské řešení vychází z celkového architektonického konceptu, dotváří jej prostorově kultivovanou formou hmoty i detailního měřítka. Z krajinářského pohledu se jedná o komplexní návrh řešící jednotlivé části území svobodnou a příjemnou formou. Na druhou stranu vlastní návrh limituje velkorysejší možnost pro uvolnění plochy a její prostupnost. Kompozice hmot umožňuje vytvořit zcela rozdílné prostory a prostředí, které návštěvník může vnímat jako velmi atraktivní. Celkový charakter stavby působí racionálním dojmem. To je podpořeno i materiálovým řešením, které navazuje na industriální identitu města. Oproti racionálnímu vnějšímu plášti pak interiér nabízí teplé přírodní materiály vhodné k lázeňskému prostředí. Celkový vzhled stavby je však ve výsledku mohutný a velmi izolovaný. Projekt pracuje s velkorysými prostory, které však nejsou vhodné pro provoz samotného objektu v měřítku pohraničního města. V provozním řešení vnímá porota za zásadní problém umístění šaten v jiném podlaží mimo hlavní atrakce lázní.

Předchozí Další
Finalista
  • Autor MEZI a DOXA
  • Team Ivo Stejskal, Maroš Mitro, Tomáš Boroš, Ondrej Jurčo, Jan Rolinc, Pavel Bakajsa, Jasmín Al-Husseinova
  • Brno a Košice
Anotace

Do rozsáhlého pozemku s jasně organizovanou a signifikantní zelení vstupujeme uceleným a kompaktním urbanismem. Kruhová forma podporuje ideu středu, centra, kolem kterého jsou komponované vodní plochy s jejich utilitárními zázemím. Velký kruh zve člověka k vstupu a ponoření se. Kromě spolupatřičnosti a demokracie, kruhová forma tématizuje neměnnou geometrii šíření vln. Dispozice objektu překvapuje svým ortogonálním vnitřkem, v kterém se vodní plochy a ostatní funkce organizují okolo centrálního atria. Pracujeme taktéž s inventářem světlíků, které prostorem přinášejí rozmanité architektonické kvality. Ačkoliv náš návrh působí introvertně a drží si svoji vlastní integritu, vyjadřujeme se i k okolnímu řešenému území. Příkladem je promenáda s alejí, začínající v parkovací ploše a ústící do koupelí. Rozsáhlé parkoviště kultivujeme sekvencemi stromů. Doplňujeme absentující zeleň, tvoříme koupele ponořené v krajině.

Hodnocení poroty

Jednoduchý tvar, propsání mřížky a využití průniku je výborný přístup, který vedl porotu k výběru návrhu do druhé fáze. Formálně silný koncept kruhového objektu lázní vytváří jasně čitelnou stavbu v centru areálu. Jde o dům, který má ambici doplnit stávající situaci o nového partnera. Lapidární forma se však nakonec ukázala jako omezení, jak pro vnitřní uspořádání, tak pro své okolí. Architektonicky zajímavé řešení s pestrou scenerií vnitřních prostorů totiž neobstálo v úrovni urbanistického přístupu ani uvnitř půdorysu. Vzniká zde mnoho zbytečných chodeb a nevyužitých prostor. Krajinářské řešení akceptuje doporučení z první fáze. Pozitivně porota hodnotí snahu zachovat vzrostlé dřeviny a zapojit je do návrhu, jednoduchou formu dosadeb i štěrkový trávník v parkovišti. Grafické vyjádření je však schematické, nevyjadřuje hmoty. Celkově se jedná o průměrné krajinářské řešení. Největší výtkou poroty je to, že návrh novostavby lázní blokuje nejcennější území areálu a jeho podstatnou část zastavuje.

Předchozí Další
Finalista
  • Autor monom works
  • Team Michal Bernart, Igor Hobza, Jakub Vašek, Tomáš Kočař, Marie Záhorová, Matěj Ševela, Michal Zapletal, Christina Vergopoulou Efstathiou
  • Praha
Anotace

Zeleň. Vzrostlé stromy. Základní elementy života určující charakter a prostorové uspořádání místa. Budova městských lázní se stane integrální součástí přirozeného prostředí. Synergie mezi dílem člověka a přírodou. Senzitivní vztah ke vzrostlým stromům. Vztah architektury - landscape, architektury - lidského těla, jsou základní principy návrhu. Příroda prorůstá utilitárními objemy, které svým uspořádáním nabízejí různorodé prostory, napůl přírodní napůl tvořené člověkem, od intimních átrií, panoramatických výhledů do korun stromů až po veřejný městský prostor.

Hodnocení poroty

Architektonicky čistý až minimalistický návrh, který se uzavírá sám do sebe. Jedná se o velice kompaktní řešení, které nabízí všechny nezbytné funkce. Návrh má však spíše charakter soukromého wellness nežli městských veřejných lázní. Zásadní výtkou poroty je orientace prosklených ploch hlavního bazénu směrem k parkovišti a rychlostní komunikaci. Z vizualizací návrh působí přesvědčivě, nicméně porota vyjádřila obavu o náročnou a nákladnou údržbu venkovních ploch. Mezi ostatními návrhy působí objekt asi nejmasivnějším/největším dojmem. Krajinářsky působí návrh na první pohled vyrovnaně, příjemně, harmonicky. Otázky vyvolávají konkrétní rozhodnutí, např. lemování saunové zahrady podrostovým keřovým patrem nebo středomořská/mediterránní výsadba.

Předchozí Další