Honorable Mention
Építész Stúdió / Zsolt Felix, Tamas Abraham, Luca Mudry, Mate Palfy, Sandor Palfy, Anna Dresch, Agnes Toth / Budapest, HungaryHonorable Mention
Építész Stúdió / Zsolt Felix, Tamas Abraham, Luca Mudry, Mate Palfy, Sandor Palfy, Anna Dresch, Agnes Toth / Budapest, Hungary2nd Prize
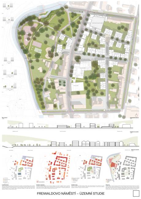
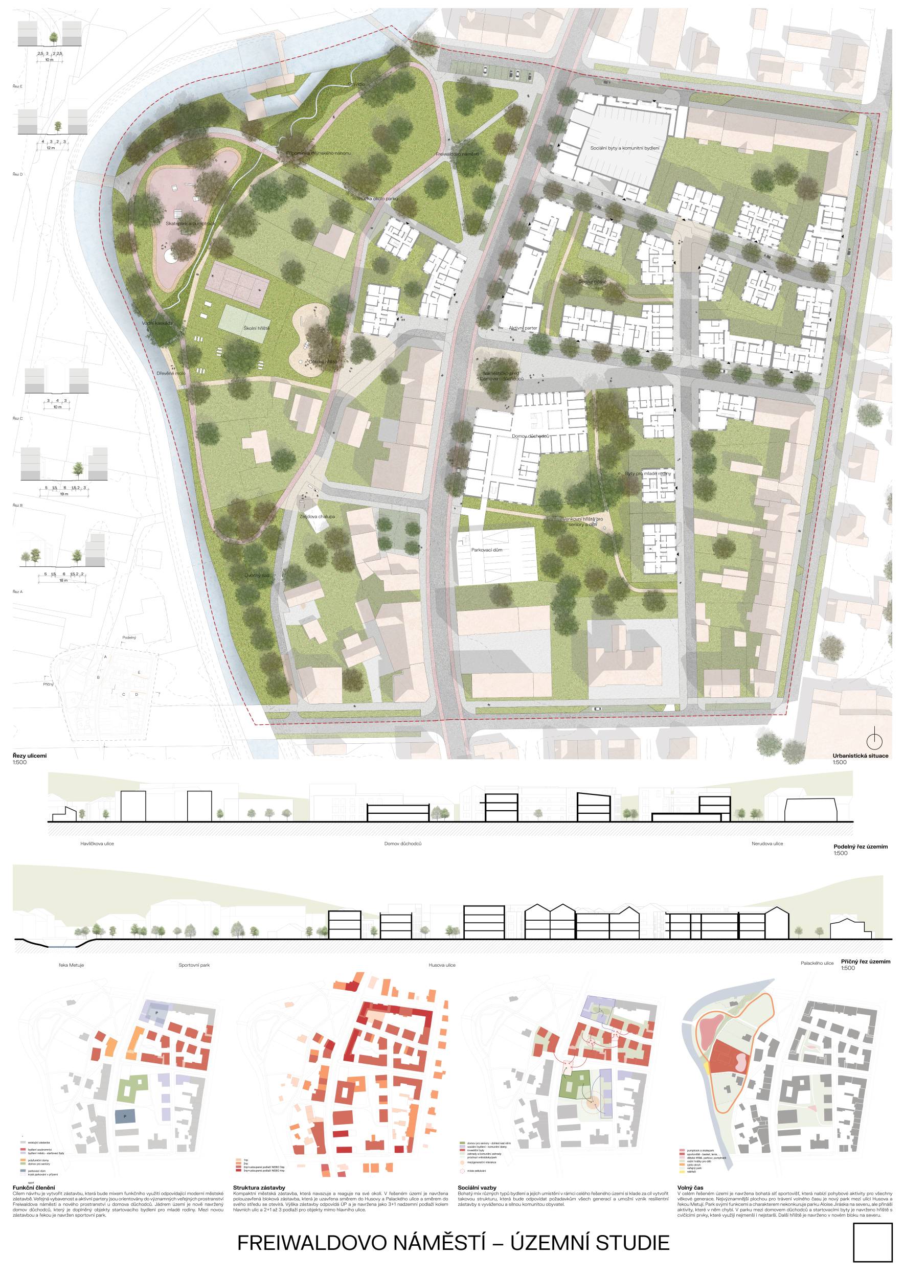
M2AU / Filip Musálek, David Helešic, Linda Obršálová; collaboration: Eliška Krejčí, Michaela Kirnerová, Adéla Orságová, Katarína Palacková, Filip Sovíček / Brno1st Prize
re:architekti studio / David Pavlišta, Ondřej Synek, Jan Vlach, Jiří Žid, Jan Čech, Martin Kunc, David Pfann (traffic solution) / Prague