C
entre for
C
entral
E
uropean
A
rchitecture
MOBA
serving platform rooted in dialogue
Competitions
Projects
Research
Sharing
Liveable infrastructures
Česky
Revoluční 30
About
Jury
Awarded
Contenders
Press
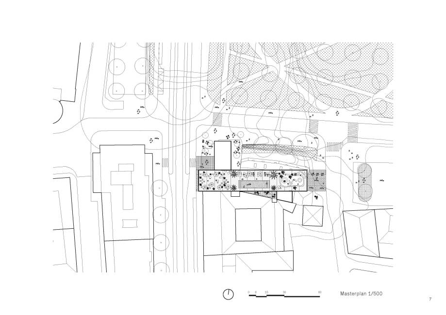
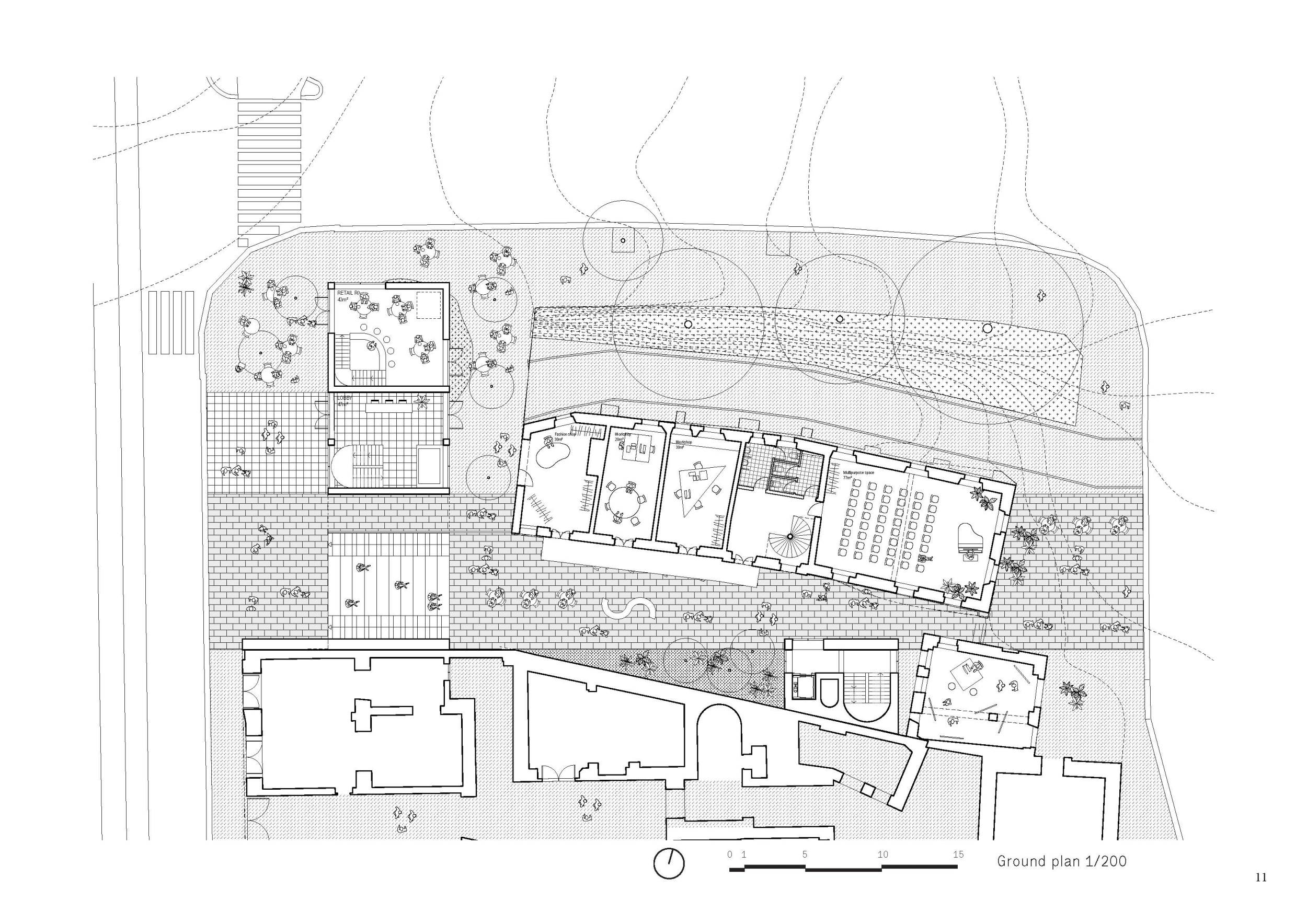
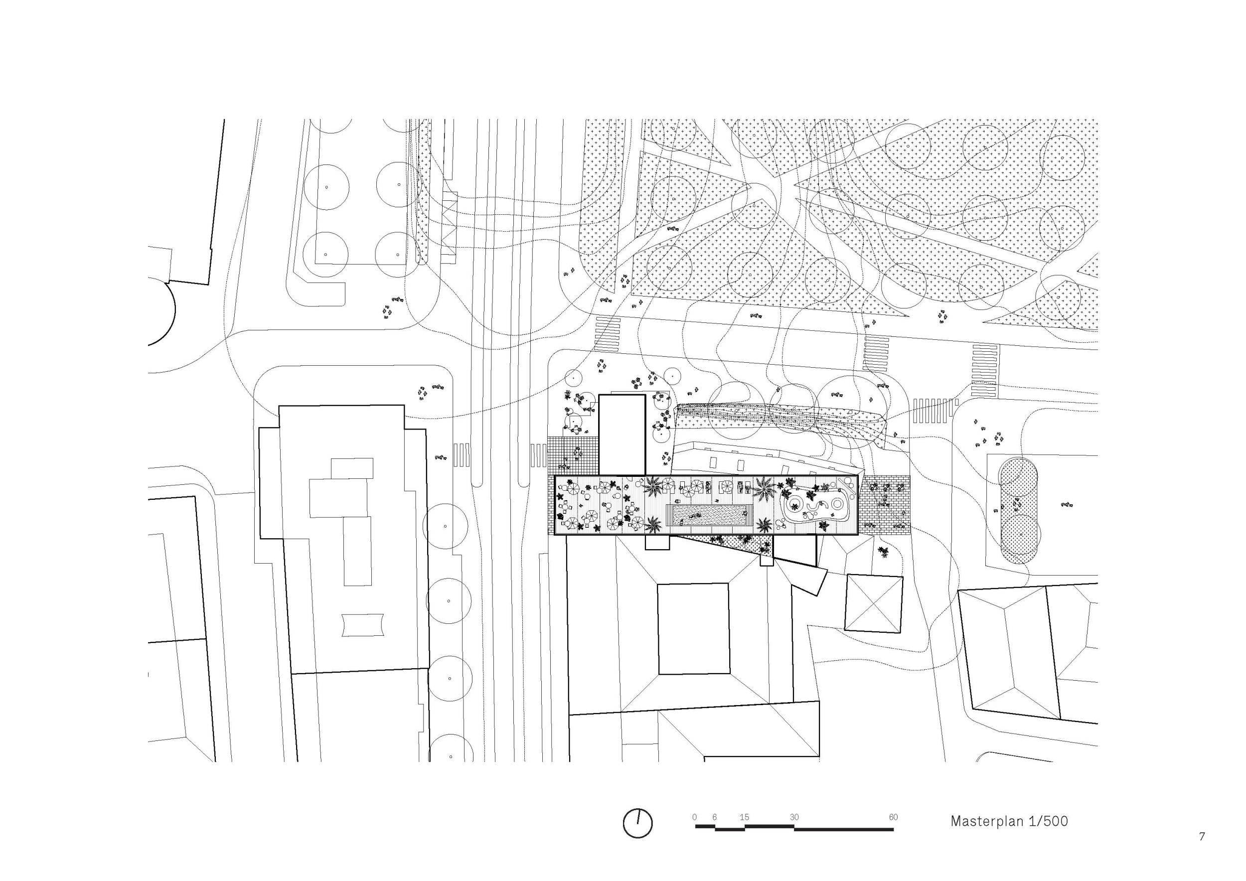
Project num. 4
1st Place
muoto + peer / Paris and Brno, France and Czechia
Close
Previous
Next
Zoom
Download