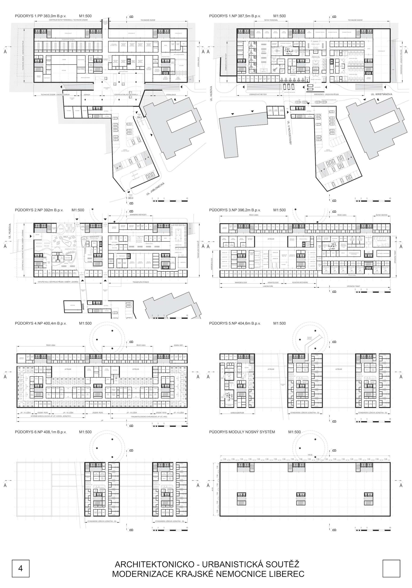
Modernization of the Liberec Regional Hospital

1st Prize
  • Author SIAL architekti a inženýři
  • Team Jiří Buček, Iva Matějovská, Filip Horatschke, Jan Duda, Libor Šenekel, Jiří Chmelík, Ondřej Košina, Josef Franc, Vít Šrámek
  • Liberec
Annotation

The vision for the development of the existing hospital site envisages the concentration of the area development on the locality defined by Kristiánova, Husova, Arbesova and Klášterní streets. The functional area has sufficient potential to cover the requirements of a gradual transformation into a modern flexible hospital. The urban concept of the site was based on the typical Liberec characteristic of the development, which consists of individual buildings surrounded by greenery - this decision is also supported by the distinctive morphology of the terrain of the hospital site with the north-south orientation of the buildings along the contour. Of course, the interconnectedness of the buildings providing internal transport is a natural part of the concept. We foresee a gradual rehabilitation of the site, in which, in addition to the construction of new pavilions, we also envisage the reconstruction of suitable existing pavilions. The chosen layout of the campus and the Centre for Emergency Medicine combines economy and flexibility of functional units. The advantage of the module is also the convenience for underground parking in future phases.

Jury Evaluation

The proposal is evaluated positively from technical, functional and operational aspects. Architecturally, its dominance is obvious, but the jury does not evaluate it problematically, but rather as a carrier of the symbolism of the hospital's significance. The jury made a few comments on the traffic solution and the overall investment costs. At the same time, however, the design is sufficiently flexible and easily adaptable, which also demonstrates the quality of the submitted concept. The proposal makes efficient and logical use and arrangement of external and internal spaces. The jury also found that, in its subsequent refinement, it will be possible to find spatial and material savings leading to a solution that meets the financial possibilities of the investor without compromising the architectural concept of the design. Also in terms of operating and life-cycle costs, the proposal is evaluated very positively. The jury found this proposal to be the best in the competition and recommended it for further development and implementation.

Previous Next
2nd Prize
  • Author ATELIER PENTA
  • Team Jaromír Homolka, Jiří Pecha, Jan Sedlák, Tomáš Bačík, Dušan Lédl
  • Jihlava
Annotation

The Regional Hospital Liberec represents the city within the city. Stage I - The Centre of Emergency Medicine (CUM) completes the street front, growing into Husova Street through the passage from which the main entrances to the emergency and future hospital hall are located. The CUM building incorporates the entire spectrum of spaces in terms of hygienic cleanliness. For these reasons, the premises are grouped from the lower common areas to clean areas such as operating theatres and intensive care beds. The inpatient wards on the 5th and 6th floors with access to the green roof terraces are designed separately. The construction of the CUM as the initial building of the entire redevelopment also raises additional needs for new technical distribution and internal transport solutions. For these functions, collectors and underground corridors are designed, which will gradually connect the objects in stages. In the final stage, the space of the central park will be freed up.

Jury Evaluation

The architectural and urban design concept presents a good and clean solution for the jury; however, it will only work in the final phase. The transport service, ensuring the hospital's operational capacity during the reconstruction period, as well as the economic adequacy, whether from an investment or an energy and operational point of view, of the structures and materials used, was assessed by the jury as positive. The internal layout has been designed logically with an emphasis on barrier-free accessibility and no crossing of traffic. The connection of Hall D to the hospital as a whole is particularly positively assessed, although the sufficiency of the lighting in the laboratories remains questionable. Overall, the jury assessed the design as one of the highest quality, with shortcomings that can be corrected by refinement.

Previous Next
3rd Prize
  • Author DOMY
  • Team Jan Topinka, Lukáš Haller, Michal Juha, Petr Uhlíř
  • Praha
Annotation

The individual phases of the hospital reconstruction consist of low-floor monoblocks with a compact base on which the inpatient units are transversely stacked. These monoblocks are connected on several levels to form a single functional unit. The boundaries of the blocks are formed by streets that follow the historical structure of the building. Those in the north-south direction vary in importance and separate traffic functions, while the corridors perpendicular to them are primarily connecting and, in terms of all traffic, backbone. The axis of U Novostavby Street runs through the whole area and slightly disturbs the regular grid. The bed units in the other direction define gardens that gradually transition from the rising ground at the highest point of the site to rooftops. The individual phases are dimensioned so that the construction process at each point in time maintains the existing traffic without restriction and so that the phases can be divided or merged. In the target state, the hospital site dissolves from a compact layout into a dispersed residential development. Architecturally high quality buildings and the heliport will be retained.

Jury Evaluation

The jury evaluates positively the urban and architectural concept chosen for this proposal, as well as the proposed operational and functional solution, the maintenance of the hospital's operability during the implementation of the first phase and the transport serviceability. With regard to the construction and materials used, the energy performance of the proposal is acceptable. The maintainability of the façade is debatable in this case, but as well as the problems from a conservation perspective, it appears to the jury to be solvable. The layout is considered logically and can withstand refinement and modification. The jury assessed the proposal as one of the best overall, and its shortcomings, including the need to seek investment savings, can be remedied by refinement.

Previous Next
Finalist
  • Author di5 architekti inženýři
  • Team Petr Lošťák, Tereza Vaňková, Martin Votřel, Pavel Kabíček, Lucie Procházková
  • Praha
Annotation

A hospital can be a distinctive element in its scale and structure that more or less disrupts the organism of the city - and given its importance, this disruption is probably defensible. But the hospital can also be in harmony with the city organism and even support it and stimulate its proper development. We solve the problem of different scale and different structure by treating the individual buildings of the hospital not as houses, but as city blocks, which we shape and position to relate to the surrounding urban structure. Between the blocks, clearly defined spaces are created that are compositionally and spatially related to the surrounding streets. This solution creates familiar and functioning archetypes (streets, squares) in the area, completes the surrounding incomplete street spaces, reinforces their proper functioning and initiates future completions of the surrounding broken blocks. We consider compactness and intensification without creating undefined areas as the basic principles of sustainable urban development.

Jury Evaluation

In the opinion of the jury, it is an urbanistically interesting city-forming proposal that would suitably complement the existing Liberec structure. The solution of transport serviceability and ensuring the hospital's operability during the implementation of the first phase was also evaluated positively. However, the jury considered that the operational and medical functionality of the submitted solution was insufficient, as well as the communication between the individual facilities. In the opinion of the jury, the low-capacity design could be modified, but at the cost of a significant increase in financial costs.

Previous Next
Finalist
  • Author SIADESIGN Liberec
  • Team Radim Kousal, Richard Černý, Marek Prchlík, Josef Trakal, Tomáš Rudolf, Jana Jachanová, Jana Růžičková
  • Liberec
Annotation

The new generation hospital is ideally suited to an architectural design based on the principles of the "horizontal model" and the "bioclimatic concept". It is an orthogonal spatial structure based on lean design principles and capable of absorbing the current, expected and unexpected demands placed on modern healthcare. The hospital "monospace" demonstrates the legibility and clarity of complex hospital programs and the required flexibility to meet the continuous evolution of medicine, technology and regulations. It is a rectangular plateau arranged around courtyards and layered into floors. It allows double circulation for medical-technical and public flows. The concept makes use of free floor levels without defining a definitive function. The hospital becomes a unit where the boundaries between medical-technical operations and accommodation can fluctuate. The adaptability of the building suits a system of individual wards with a mobile boundary and flexible bed space, or the building can be adapted to a functional multi-modular health care system with a completely pooled bed stock, where one ward in the hospital "owns" neither the space, nor the beds, nor the instrumentation.

Jury Evaluation

For the jury, the design represents an interesting and unusual architectural and urban concept. The solution of the transport service to the Regional Hospital Liberec from Jablonecká Street was also evaluated as beneficial. However, the maintenance of the hospital's operational capacity during the construction period is questionable, as the heliport operation is not fully maintained during the implementation of the first phase. Questions were also raised about the sufficiency of lighting in the lower parts of the building, and the jury also had reservations about the investment costs and the energy consumption of the operation.

Previous Next
Finalist
  • Author Adam Rujbr Architects; Adam Rujbr, Michaela Foltýnová, Aleš Chlád, Vít Benda
Annotation

A modern hospital is not a building, but a living organism that is constantly evolving. A hospital has a heart, an emergency room that pulsates regardless of day or night. It has a main artery that supplies the hospital, carries energy and distributes it throughout the campus. It has a backbone that is a pathway for patients and staff. In the design, the heart, the emergency reception, is located in the outermost longitudinal building. It is gradually joined by other facilities connected by a new spine running down the centre of the hospital. The buildings are linked to each other as two inverted ridges, connected by a central axis to the semi-enclosed outermost blocks. The main entrance is designed from a square square with greenery. For the flow of traffic, the arrival of ambulances is designed separately from the supply and visitor cars, which are directed to the underground garages. The hospital is a living, evolving organism whose function can be influenced by a clear concept of logistic flows. The new Regional Hospital Liberec has the prerequisite to be a functional unit and at the same time a pleasant environment for patients and employees.

Jury Evaluation

The jury judged the design to be functionally and structurally sound, but urbanistically drab. The jury has partial reservations about the traffic solution: although it makes good use of all three entrances - Husova, Jablonecká and Kristiánova streets, the location of the front of the parking house in Jablonecká Street seems to be operationally inappropriate in view of the traffic density.

Previous Next