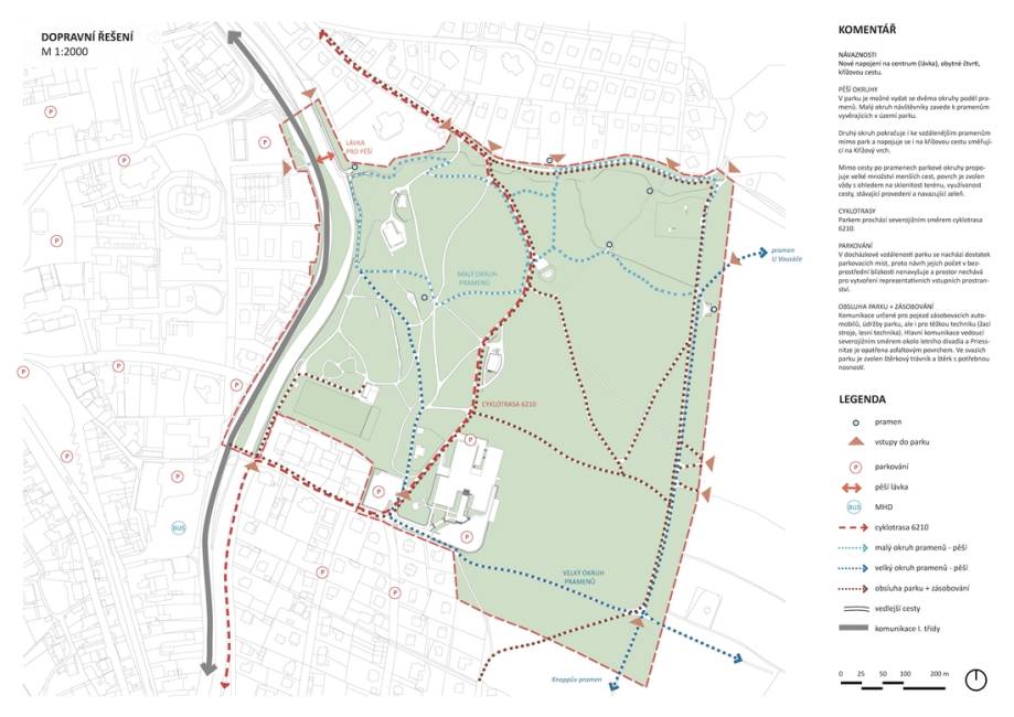
Smetana's Orchards Jeseník

Project num. 1

1st prize

Barbora Kubická, Júlia Bobríková / Barbora Kubická, Júlia Bobríková / Nové Město na Moravě, Brno
Project num. 2

Ela Vrlová / Ela Vrlová, Jiří Červený, Klára Končáková / Tečovice
Project num. 3

GuldanArchitects / Eugen Guldan, Alexandra Macholová, Adelina Belinska / Bratislava, Slovakia
Project num. 4

JUNG architekti / Adam Jung, Barbora Jung, Jana Zuntychová, Matyáš Černík / Brno
Project num. 5

finalist

Shromáždilová Fišer Radilová / Lukáš Fišer, Kristýna Shromáždilová, Lucie Radilová, Michaela Olejárová, Barbora Černá / Brno
Project num. 6

Studio reaktor / Jan Kačer, Kateřina Klapková, Lenka Dřevjaná, Veronika Kučerová, Michal Fousek, Gabriela Udrea / Prague
Project num. 7

ofschem architekti / Luboš Františák, Matěj Ondruch, Viktor Schwab, Lucie Roubalová, Zdeněk Navrátil, Tomáš Brokeš, Gabriela Svobodová / Brno
Project num. 8

2nd prize

ADEA projekt / Aleš Vojtasík, Petra Vojtasíková, Metthew Paul Oravec / Ostrava
Project num. 9

finalist

LBNK architekti / Pavlína Řmotová, Vojtěch Rudorfer, Eva Dzurillová, Eliška Chrtková, Josef Matyska, Karel Schwarz / Prague
Project num. 10

finalist

Klára Concepcion / Klára Concepcion, Zuzana Grečnárová, Kateřina Vrbacká / Praha
Project num. 11

M&P architekti – krajinářská architektura / Markéta Veličková, Petr Veliček, Tomáš Popelínský, Daniela Růžičková / Velké Meziříčí
Project num. 12

kodet architekti / Tomáš Kodet, Martina Kodetová / Kutná Hora